This calculator provides a guide to the amount of residential stamp duty you may pay and does not guarantee this will be the actual cost. This calculation is based on the Stamp Duty Land Tax Rates for residential properties purchased from 23rd September 2022 and second homes from 31st October 2024. For more information on Stamp Duty Land Tax, click here.
2 bedroom Flat for sale, Darlington, DL1
Features and Description
- EPC Rating: D
- Council Tax Band: B
- *SOLD WITH NO FORWARD CHAIN
- *IDEAL INVESTMENT - TENANT IN SITU £600PCM
- *EASY ACCESS TO MAIN TRANSPORT LINKS
- *GREAT LOCATION
- *CLOSE TO A66 AND RING ROAD
* ATTENTION INVESTORS * TENANT IN SITU** SPACIOUS GROUND FLOOR FLAT * Tenant paying £600 per month! In a sought after location with allocated parking. Sold with vacant possession and a good investment opportunity. A viewing is advised to appreciate the size with large double bedrooms, open kitchen and living space. Close to local schools, shops and easy access to A66.
EPC Rating: D
Council Tax Band: B
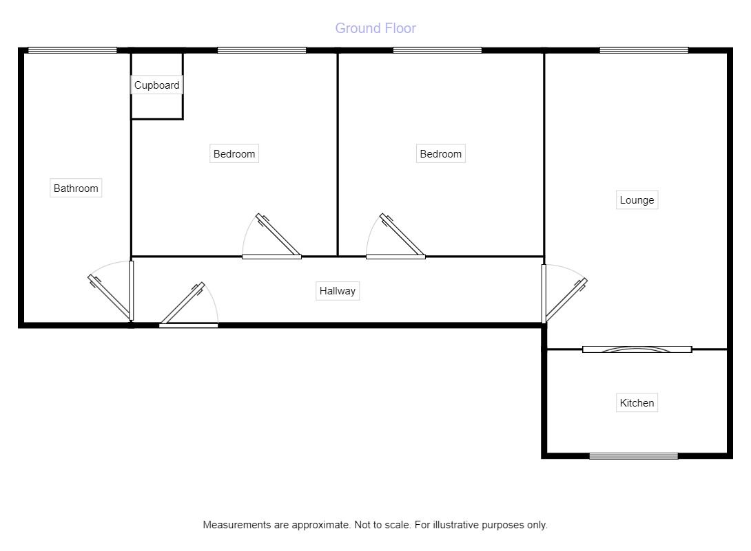
Living Room
19'7" x 9'11" (5.97m x 3.03m)
Kitchen
6'1" x 4'4" (1.85m x 1.31m)
Bedroom
11'6" x 10'1" (3.50m x 3.07m)
Bedroom 2
11'11" x 12'3" (3.62m x 3.74m)
Bathroom
Shower over Bath
EXTERNALLY
ONE ALLOCATED PARKING SPACE
Additional Information
HMRC is a supervisory body for money laundering regulations, of which all estate agents need to be registered. As part of this, there are multiple requirements that agents must rigorously and consistently meet to ensure they stay compliant with the regulations and protect their clients. To do this, we use an identity verification service, approved by the Government as part of the Digital Identity and Attributes Trust Framework (DIATF). This method and the process we follow to ensure compliance for your transaction come with significant time, financial and legal implications hence a portion of this is passed on to our clients. We elected for this verification process due to the speed, certainty, and accuracy it delivers. This helps us to protect all our client's interests by using the most advanced verification process to help prevent the impacts of money laundering alongside our internal manual policies and procedures while staying compliant with HMRC. The administrative charge for this process is £40 plus VAT for a sole purchaser, £65 plus VAT for two purchasers and £75 plus VAT three or more purchasers.
IMPORTANT NOTE TO POTENTIAL PURCHASERS:
We endeavour to make our particulars accurate and reliable, however, they do not constitute or form part of an offer or any contract and none is to be relied upon as statements of representation or fact. The services, systems and appliances listed in this specification have not been tested by us and no guarantee as to their operating ability or efficiency is given. All photographs and measurements have been taken as a guide only and are not precise. Floor plans where included are not to scale and accuracy is not guaranteed. If you require clarification or further information on any points, please contact us, especially if you are travelling some distance to view. Fixtures and fittings other than those mentioned are to be agreed with the seller.
Darlington, DL1
Additional Information
-
Property refDAR230249
-
EPCD
-
TenureLeasehold
-
Lease length105 years
-
Council TaxA
-
Local authorityDarlington Borough Council
-
Ground RentContact the branch
-
Ground Rent ReviewContact the branch
-
Service ChargeContact the branch
Similar properties for sale by Your Move Darlington
The pin shows the exact address of the property
Energy Efficiency Rating
Very energy efficient - lower running costs
Not energy efficient - higher running costs
Current
68Potential
69CO2 Rating
Very energy efficient - lower running costs
Not energy efficient - higher running costs
