This calculator provides a guide to the amount of residential stamp duty you may pay and does not guarantee this will be the actual cost. This calculation is based on the Stamp Duty Land Tax Rates for residential properties purchased from 23rd September 2022 and second homes from 31st October 2024. For more information on Stamp Duty Land Tax, click here.


Land/Plot for sale, Land At Pipes Meadow, Wolverhampton, West Midlands, WV14
Features and Description
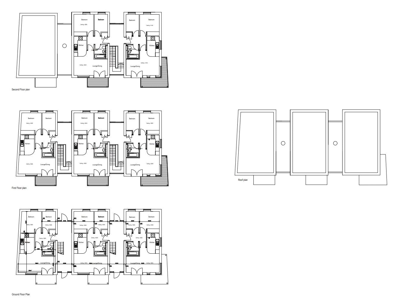
Erection of three and two storey building containing eight apartments of 530 sq ft (50 m2) with associated landscaping | Site Adjacent To Bilston Post Office Hall Street Pipes Meadow Wolverhampton West Midlands
Planning reference - 20/01426/FUL
IMPORTANT NOTE TO POTENTIAL PURCHASERS:
We endeavour to make our particulars accurate and reliable, however, they do not constitute or form part of an offer or any contract and none is to be relied upon as statements of representation or fact. The services, systems and appliances listed in this specification have not been tested by us and no guarantee as to their operating ability or efficiency is given. All photographs and measurements have been taken as a guide only and are not precise. Floor plans where included are not to scale and accuracy is not guaranteed. If you require clarification or further information on any points, please contact us, especially if you are travelling some distance to view. Fixtures and fittings other than those mentioned are to be agreed with the seller.
Land At Pipes Meadow, Wolverhampton, West Midlands, WV14

Additional Information
-
Property refWOL250555
-
TenureFreehold
-
Council TaxNA
-
Local authorityWolverhampton City Council

Similar properties for sale by Your Move Wednesfield


The pin shows the exact address of the property
Energy Efficiency Rating
Very energy efficient - lower running costs
Not energy efficient - higher running costs
Current
N/APotential
N/ACO2 Rating
Very energy efficient - lower running costs
Not energy efficient - higher running costs