This calculator provides a guide to the amount of residential stamp duty you may pay and does not guarantee this will be the actual cost. This calculation is based on the Stamp Duty Land Tax Rates for residential properties purchased from 23rd September 2022 and second homes from 31st October 2024. For more information on Stamp Duty Land Tax, click here.




Land/Plot for sale, Stray Park Road, Camborne, Cornwall, TR14
Features and Description
- Rare Opportunity To Acquire Development Land
- Attention Builders/Developers
- Previous Planning Permission Granted
- Situated In A Popular & Convenient Location
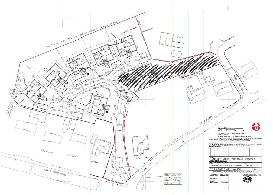
- Previous Planning Reference: PA11/10193
A rare opportunity to acquire a parcel of land extending to approximately 1 acre which previously had Detailed Planning Permission granted to build six, detached, three bedroom, Family homes, each with their own gardens, garage and off-road parking.
This Planning Permission has now lapsed, however details of the same can be found on the Cornwall Council Online Planning Portal by searching under reference number PA11/10193.
The Land is advertised based on being sold with no Planning Permission, however the Vendor would also consider agreeing a sale subject to an 'Option Agreement' at a higher sale price in the region of £645,000, subject to a successful Planning Application.
For further information, please contact the office directly.
Location
Situated within a short distance of Camborne Town Centre. Camborne has an excellent mix of living options with superb transportation links via bus, railway and the A30 which gives easy access to the very best of Cornwall's countryside. Camborne has many fine schools and the local college is attracting high acclaimed for its academic achievements. Retail options are in abundance many major national retailers being located in the town centre and there are also many local shops and boutiques being represented.
IMPORTANT NOTE TO POTENTIAL PURCHASERS:
We endeavour to make our particulars accurate and reliable, however, they do not constitute or form part of an offer or any contract and none is to be relied upon as statements of representation or fact. The services, systems and appliances listed in this specification have not been tested by us and no guarantee as to their operating ability or efficiency is given. All photographs and measurements have been taken as a guide only and are not precise. Floor plans where included are not to scale and accuracy is not guaranteed. If you require clarification or further information on any points, please contact us, especially if you are travelling some distance to view. Fixtures and fittings other than those mentioned are to be agreed with the seller.
Stray Park Road, Camborne, Cornwall, TR14




The pin shows the exact address of the property
Energy Efficiency Rating
Very energy efficient - lower running costs
Not energy efficient - higher running costs
Current
N/APotential
N/ACO2 Rating
Very energy efficient - lower running costs
Not energy efficient - higher running costs