This calculator provides a guide to the amount of residential stamp duty you may pay and does not guarantee this will be the actual cost. This calculation is based on the Stamp Duty Land Tax Rates for residential properties purchased from 23rd September 2022 and second homes from 31st October 2024. For more information on Stamp Duty Land Tax, click here.








2 bedroom Mid Terrace House for sale, Garfield Street, Carlisle, CA2
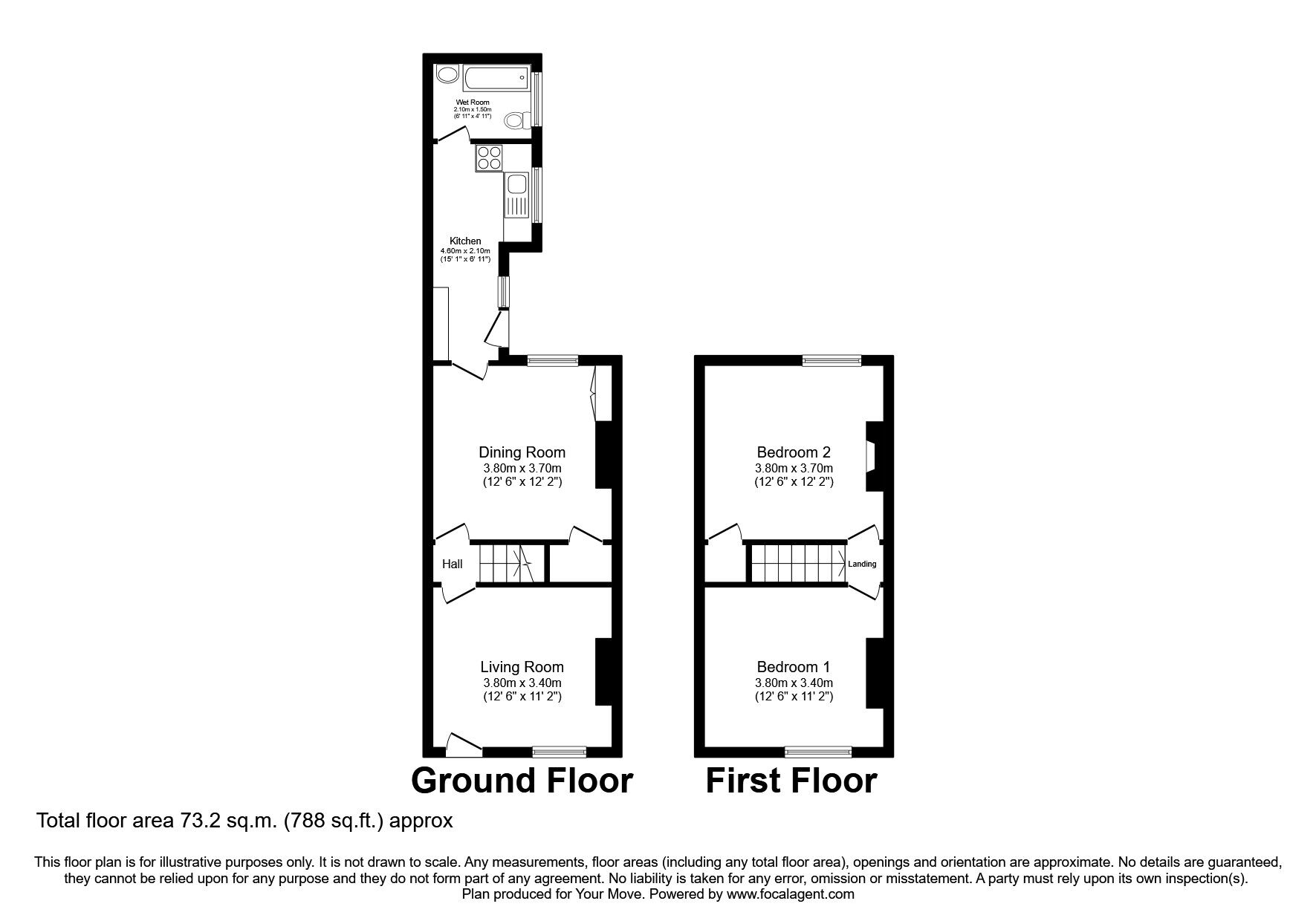
Features and Description
- 2 Bedrooms
- Living Room
- Sitting Room
- Kitchen
- Bathroom
A two bedroom, two reception mid terrace property on the popular Garfield Street in Denton Holme. The accommodation offers living room, sitting room, kitchen and bathroom. The first floor has two double bedrooms. Externally is on street permit parking, where available. To the rear is a yard with access to a shared lane. NO CHAIN, IDEAL FOR FIRST TIME BUYERS OR BUSINESS OPPORTUNITY.
Living Room
12'6" x 11'2" (3.80m x 3.40m)
Accessed via UPVC front door into living room, with neutral decor, fireplace (no fire) and meter cupboard positioned in corner.
Sitting / Dining Room
12'6" x 12'2" (3.80m x 3.70m)
Positioned at the rear of the property, with storage cupboard and leading into kitchen.
Kitchen
13'1" x 6'11" (4.00m x 2.10m)
A range of wall and base units with contrasting worktops, freestanding gas oven and hob, space for washing machine and fridge/freezer, sink, doors to bathroom and rear yard.
Bathroom
6'11" x 4'11" (2.10m x 1.50m)
Ground floor three piece white suite with bath, thermostatic shower, partial wall tiling, sink and WC.
Primary Bedroom
12'6" x 11'2" (3.80m x 3.40m)
Double bedroom, positioned at the front of the property. with two windows and neutral décor.
Bedroom 2
12'6" x 12'2" (3.80m x 3.70m)
Double bedroom, positioned at the rear of the property, with storage cupboard and decorative fireplace (not in use).
External
Parking is residential on street, where available - permit available via Cumberland Council, subject to conditions. To the rear, there is a walled yard with wooden gate accessing the shared lane.
Additional
This property benefits from double glazing and gas heating.
IMPORTANT NOTE TO POTENTIAL PURCHASERS:
We endeavour to make our particulars accurate and reliable, however, they do not constitute or form part of an offer or any contract and none is to be relied upon as statements of representation or fact. The services, systems and appliances listed in this specification have not been tested by us and no guarantee as to their operating ability or efficiency is given. All photographs and measurements have been taken as a guide only and are not precise. Floor plans where included are not to scale and accuracy is not guaranteed. If you require clarification or further information on any points, please contact us, especially if you are travelling some distance to view. Fixtures and fittings other than those mentioned are to be agreed with the seller.
Garfield Street, Carlisle, CA2

Additional Information
-
Property refCAR240016
-
EPCD
-
TenureFreehold
-
Council TaxA
-
Local authorityCumberland Council


Accessed via UPVC front door into living room, with neutral decor, fireplace (no fire) and meter cupboard positioned in corner.

Positioned at the rear of the property, with storage cupboard and leading into kitchen.

A range of wall and base units with contrasting worktops, freestanding gas oven and hob, space for washing machine and fridge/freezer, sink, doors to bathroom and rear yard.

Ground floor three piece white suite with bath, thermostatic shower, partial wall tiling, sink and WC.

Double bedroom, positioned at the front of the property. with two windows and neutral décor.

Double bedroom, positioned at the rear of the property, with storage cupboard and decorative fireplace (not in use).

Parking is residential on street, where available - permit available via Cumberland Council, subject to conditions. To the rear, there is a walled yard with wooden gate accessing the shared lane.

The pin shows the exact address of the property
Energy Efficiency Rating
Very energy efficient - lower running costs
Not energy efficient - higher running costs
Current
63Potential
87CO2 Rating
Very energy efficient - lower running costs
Not energy efficient - higher running costs