This calculator provides a guide to the amount of residential stamp duty you may pay and does not guarantee this will be the actual cost. This calculation is based on the Stamp Duty Land Tax Rates for residential properties purchased from 23rd September 2022 and second homes from 31st October 2024. For more information on Stamp Duty Land Tax, click here.
3 bedroom Mid Terrace House for sale, Hughenden Road, Norwich, Norfolk, NR1
Features and Description
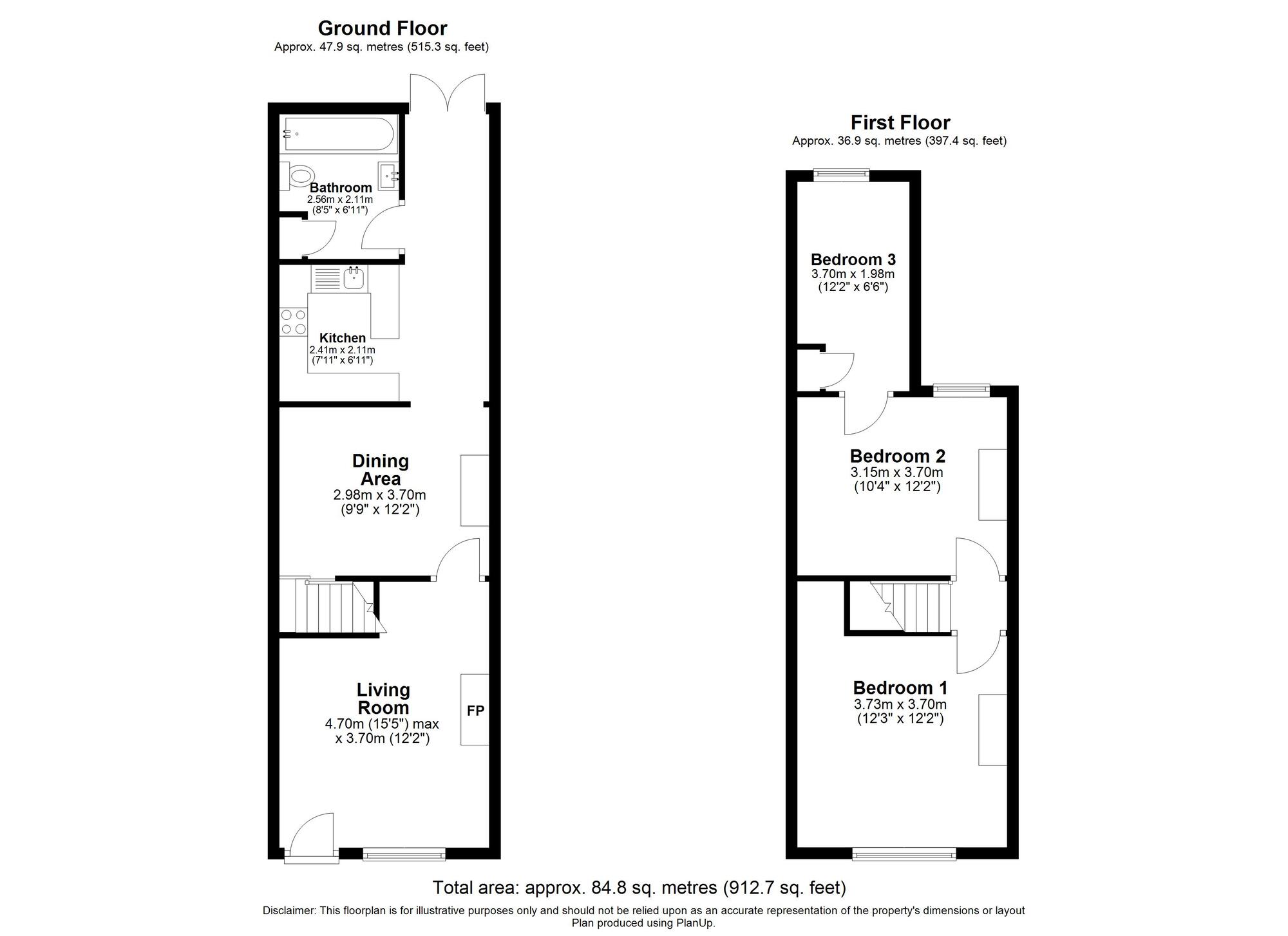
*NO ONWARD CHAIN* This superbly presented 2/3 bedroom mid terraced house is positioned in a highly sought after location in a cul-de-sac being within very easy reach of Norwich City Centre. The property has retained many character features and provides an excellent amount of living space, with a good sized lounge with period fireplace, dining room and kitchen opening into a glass roof orangery, as well as a downstairs family bathroom fitted with white suite. Outside, the house offers a fully private, very low maintenance and spacious non-bisected garden. The vendors are offering a sale with no onward chain.
Agents Note
Photos have been taken with a wide angled lens. We cannot guarantee 100% accuracy with measurements.
Counxil Tax
Band B
IMPORTANT NOTE TO POTENTIAL PURCHASERS:
We endeavour to make our particulars accurate and reliable, however, they do not constitute or form part of an offer or any contract and none is to be relied upon as statements of representation or fact. The services, systems and appliances listed in this specification have not been tested by us and no guarantee as to their operating ability or efficiency is given. All photographs and measurements have been taken as a guide only and are not precise. Floor plans where included are not to scale and accuracy is not guaranteed. If you require clarification or further information on any points, please contact us, especially if you are travelling some distance to view. Fixtures and fittings other than those mentioned are to be agreed with the seller.
Hughenden Road, Norwich, Norfolk, NR1
Additional Information
-
Property refQNO250270
-
TenureFreehold
-
Council TaxB
-
Local authorityNorwich City Council
The pin shows the exact address of the property
Energy Efficiency Rating
Very energy efficient - lower running costs
Not energy efficient - higher running costs
Current
N/APotential
N/ACO2 Rating
Very energy efficient - lower running costs
Not energy efficient - higher running costs
