This calculator provides a guide to the amount of residential stamp duty you may pay and does not guarantee this will be the actual cost. This calculation is based on the Stamp Duty Land Tax Rates for residential properties purchased from 23rd September 2022 and second homes from 31st October 2024. For more information on Stamp Duty Land Tax, click here.
3 bedroom Mid Terrace House for sale, Mitchell Square, Silsden, West Yorkshire, BD20
Features and Description
- 3 Bedrooms
- Lounge
- Dining Room
For sale, a charming town house, a property in good condition that promises comfort and convenience. The property boasts a rich array of features suited to families and first-time buyers alike.
The house features three bedrooms, each thoughtfully designed to offer a restful haven. Two bedrooms offer generous double proportions, whilst the third is a comfortable single room. The bedrooms echo the overall condition of the property, all in good condition and ready for their new owners.
The property has a single bathroom, featuring a luxurious free-standing bath serving as a highlight - the perfect place to unwind after a long day.
The property also benefits from two reception rooms, both of which are brimming with character. The first room has large windows, flooding the space with natural light, the perfect setting for family gatherings or tranquil afternoons. The second room features a fireplace, adding a touch of cosiness and charm to the space.
The house also includes a kitchen, a space that benefits from natural light, making it a bright and inviting room for cooking and dining.
Additional features of the property include a utility room and a ground floor toilet, providing practical solutions for everyday living. The property also benefits from allotted parking space for one car - a highly desirable feature.
Located in a sought after location, the property is in proximity to public transport links, local amenities and nearby schools, making it an ideal home for families.
The property is energy efficient with an EPC rating of E and falls within the council tax band D.
In conclusion, this town house is a perfect blend of character and convenience, making it an ideal choice for first-time buyers or families looking for their dream home. Be sure to schedule a viewing, as this delightfully unique property will not stay on the market for long!
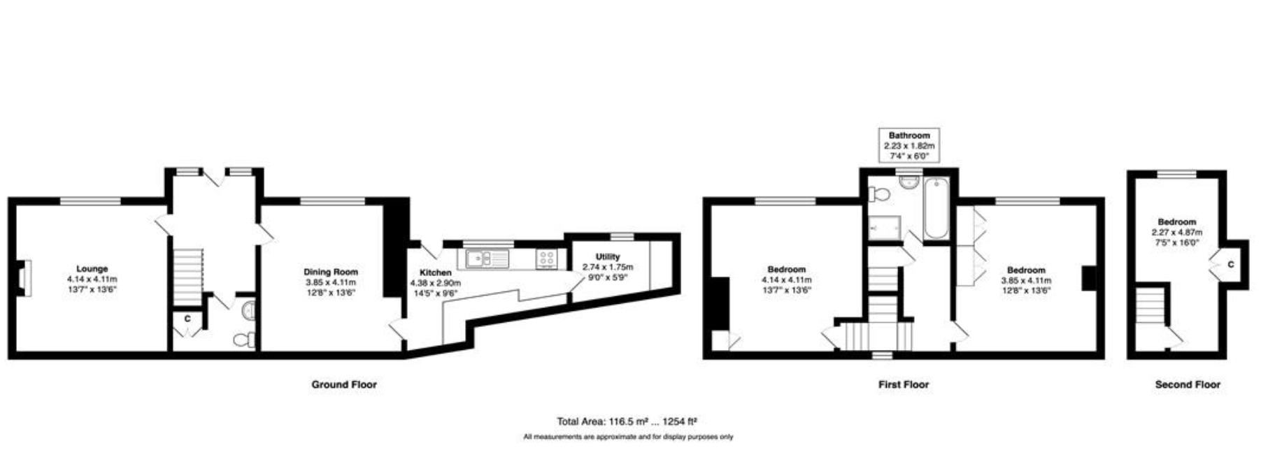
Lounge
13'7" x 13'6" (4.14m x 4.11m)
A spacious lounge with focal point fireplace.
Dining Room
12'8" x 16'3" (3.86m x 4.95m)
The dining room is also a large space with a window to the front.
Kitchen
14'5" x 9'6" (4.40m x 2.90m)
Passing through the lounge you reach the kitchen equipped with wall and base units.
Utility Room
9'9" x 5'9" (2.97m x 1.75m)
A handy utility room located beyond the kitchen.
Bedroom 1
13'7" x 13'6" (4.14m x 4.11m)
A large double room with a window to the front.
Bedroom 2
12'6" x 13'6" (3.80m x 4.11m)
Another large doble room.
Bathroom
7'4" x 6'0" (2.24m x 1.83m)
House bathroom equipped with a bath, basin and toilet.
Bedroom 3
7'5" x 16'0" (2.26m x 4.88m)
A bedroom located in the roof space.
IMPORTANT NOTE TO POTENTIAL PURCHASERS:
We endeavour to make our particulars accurate and reliable, however, they do not constitute or form part of an offer or any contract and none is to be relied upon as statements of representation or fact. The services, systems and appliances listed in this specification have not been tested by us and no guarantee as to their operating ability or efficiency is given. All photographs and measurements have been taken as a guide only and are not precise. Floor plans where included are not to scale and accuracy is not guaranteed. If you require clarification or further information on any points, please contact us, especially if you are travelling some distance to view. Fixtures and fittings other than those mentioned are to be agreed with the seller.
Mitchell Square, Silsden, West Yorkshire, BD20
Additional Information
-
Property refQKG250281
-
EPCE
-
TenureFreehold
-
Council TaxD
-
Local authorityBradford Council
The pin shows the exact address of the property
Energy Efficiency Rating
Very energy efficient - lower running costs
Not energy efficient - higher running costs
Current
53Potential
79CO2 Rating
Very energy efficient - lower running costs
Not energy efficient - higher running costs
