This calculator provides a guide to the amount of residential stamp duty you may pay and does not guarantee this will be the actual cost. This calculation is based on the Stamp Duty Land Tax Rates for residential properties purchased from 23rd September 2022 and second homes from 31st October 2024. For more information on Stamp Duty Land Tax, click here.
3 bedroom Mid Terrace House for sale, Sheridan Court, Barnsley, S71
Features and Description
- Three-bedroom terraced family home
- Spacious kitchen with dining area
- Large enclosed rear garden
- Bright lounge with feature fireplace
- Two double bedrooms plus single
- Neutrally decorated throughout
- Ideal for first-time buyers
- Popular Barnsley location near amenities
- Good transport links, rail and road
- Council Tax Band A
** GUIDE PRICE £140,000- £150,000** This three-bedroom terraced house is for sale in Barnsley and is neutrally decorated throughout. The property offers one reception room, a large kitchen with dining space, and a family bathroom, making it suitable for first-time buyers, investors and families.
The living room features large windows that provide plenty of natural light, as well as a fireplace that forms a focal point to the space. The kitchen is notably spacious, with room for dining and good natural light, leading out to a large enclosed garden that offers usable outdoor space for children, pets or entertaining.
Upstairs, there are two double bedrooms and one single bedroom, providing flexible accommodation for a couple, young family or those needing a home office or guest room. The property falls within Council Tax Band A.
The house is situated in a popular area of Barnsley with access to local amenities including shops, supermarkets and everyday services in and around the town centre. nearby schools are within reach for families with children, and there are parks and walking routes in the wider Barnsley area, such as Locke Park and the Trans Pennine Trail, offering green space for leisure and exercise.
Barnsley Interchange provides rail links to Leeds and Sheffield, with typical journey times of around 25–35 minutes, as well as extensive bus connections across the region. Road links via the A628 and M1 give access to surrounding towns and cities, supporting commuting and travel further afield.
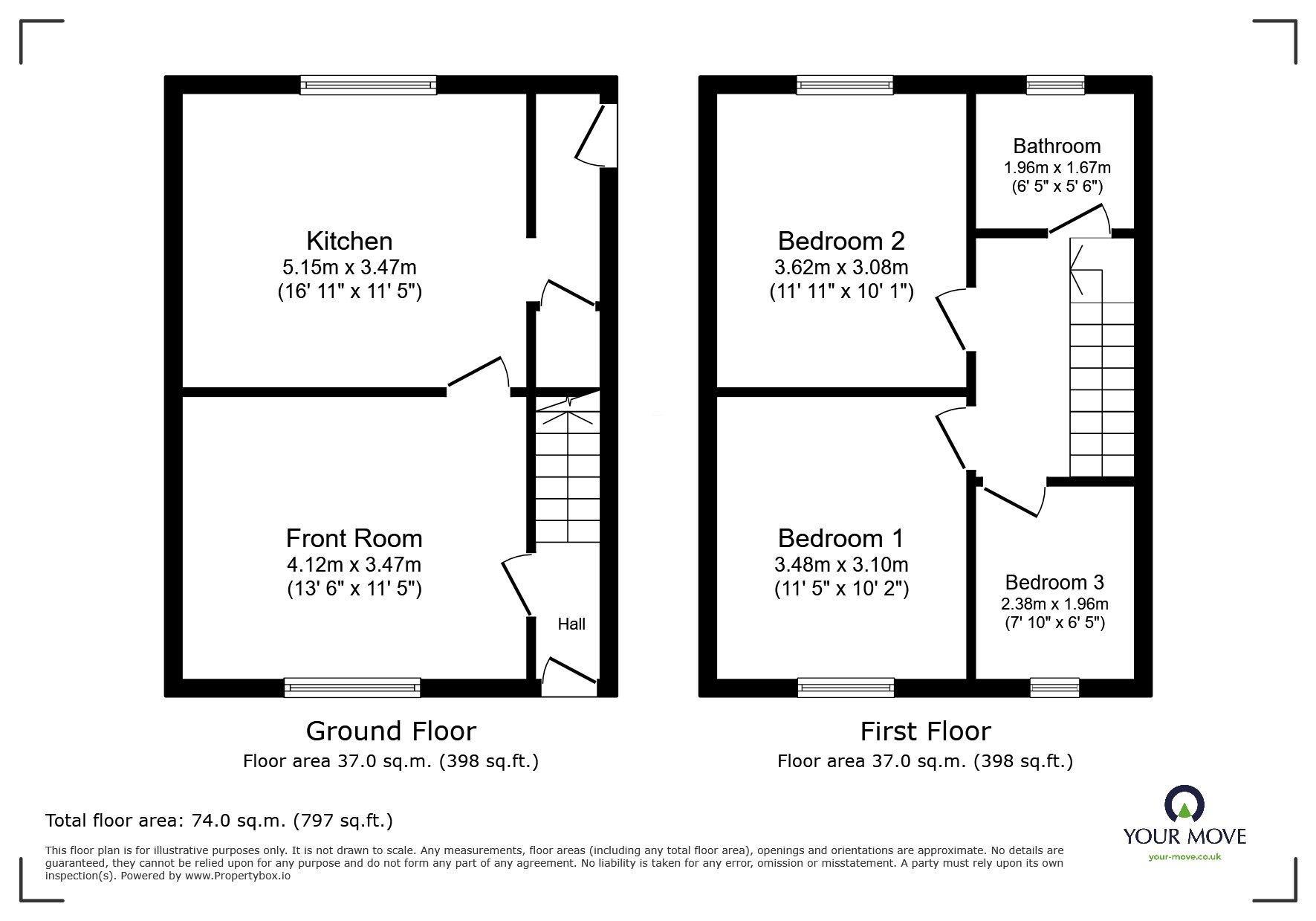
Living Room
4.12mx 3.62m
Kitchen
5.15mx 3.47m
Bathroom
1.67mx 1.96m
Bedroom 1
3.48mx 3.10m
Bedroom 2
3.62mx 3.08m
Bedroom 3
1.96mx 2.38m
IMPORTANT NOTE TO POTENTIAL PURCHASERS:
We endeavour to make our particulars accurate and reliable, however, they do not constitute or form part of an offer or any contract and none is to be relied upon as statements of representation or fact. The services, systems and appliances listed in this specification have not been tested by us and no guarantee as to their operating ability or efficiency is given. All photographs and measurements have been taken as a guide only and are not precise. Floor plans where included are not to scale and accuracy is not guaranteed. If you require clarification or further information on any points, please contact us, especially if you are travelling some distance to view. Fixtures and fittings other than those mentioned are to be agreed with the seller.
Sheridan Court, Barnsley, S71
Additional Information
-
Property refBAR260003
-
TenureFreehold
-
Council TaxA
-
Local authorityBarnsley Metropolitan Borough Council
The pin shows the exact address of the property
Energy Efficiency Rating
Very energy efficient - lower running costs
Not energy efficient - higher running costs
Current
N/APotential
N/ACO2 Rating
Very energy efficient - lower running costs
Not energy efficient - higher running costs
