This calculator provides a guide to the amount of residential stamp duty you may pay and does not guarantee this will be the actual cost. This calculation is based on the Stamp Duty Land Tax Rates for residential properties purchased from 23rd September 2022 and second homes from 31st October 2024. For more information on Stamp Duty Land Tax, click here.












3 bedroom Semi Detached House for sale, Brookfield Crescent, Newcastle upon Tyne, Tyne and Wear, NE5
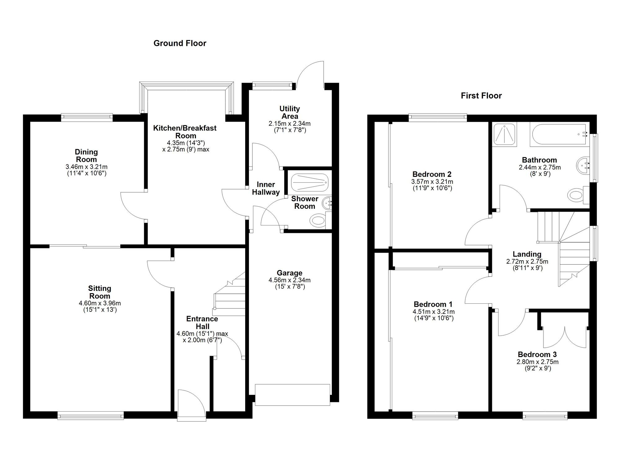
Features and Description
- Three Bedroom Semi Detached House
- NO ONWARD CHAIN
- Downstairs Shower room
- Floor Area - 100 sq.m / 1,076 sq.ft
- Council Tax Band - C
- EPC Rating - E
Larger style three bedroom semi-detached house located in one of West Newcastle's most sought after areas.....
Available with no chain. Likely to appeal to many families and professionals we strongly recommend viewing at your earliest convenience.
The potential on offer is fantastic with the larger style semi-detached house seldom coming to the market.
The impressive ground floor accommodation includes spacious entrance hallway, two reception rooms and kitchen/breakfasting room. From the kitchen there is also a utility area and downstairs shower room.
To the first floor there are three very well proportioned bedrooms and bathroom with four piece suite including WC, pedestal wash hand basin, bath and shower cubicle.
Externally there is an enclosed garden to rear. To the front there is a driveway and garage which provide ample off street parking facilities.
Chapel House is one of the more traditional and established residential areas in the West of Newcastle and lies a short distance from the city centre which can be easily reached via numerous bus routes. Newcastle provides an excellent array of schooling, cultural and shopping facilities including the Metro Centre and Quayside. The A69 and A1 trunk roads are also close at hand providing excellent transport links.
We understand the property is leasehold with 936 years remaining and a ground rent of £15 per annum.
IMPORTANT NOTE TO POTENTIAL PURCHASERS:
We endeavour to make our particulars accurate and reliable, however, they do not constitute or form part of an offer or any contract and none is to be relied upon as statements of representation or fact. The services, systems and appliances listed in this specification have not been tested by us and no guarantee as to their operating ability or efficiency is given. All photographs and measurements have been taken as a guide only and are not precise. Floor plans where included are not to scale and accuracy is not guaranteed. If you require clarification or further information on any points, please contact us, especially if you are travelling some distance to view. Fixtures and fittings other than those mentioned are to be agreed with the seller.
Brookfield Crescent, Newcastle upon Tyne, Tyne and Wear, NE5

Additional Information
-
Property refQWD250466
-
EPCE
-
TenureLeasehold
-
Lease length935 years
-
Council TaxC
-
Local authorityNewcastle Upon Tyne City Council
-
Ground Rent£15
-
Ground Rent ReviewContact the branch
-
Service ChargeContact the branch

Similar properties for sale by Your Move West Denton












The pin shows the exact address of the property
Energy Efficiency Rating
Very energy efficient - lower running costs
Not energy efficient - higher running costs
Current
39Potential
78CO2 Rating
Very energy efficient - lower running costs
Not energy efficient - higher running costs