This calculator provides a guide to the amount of residential stamp duty you may pay and does not guarantee this will be the actual cost. This calculation is based on the Stamp Duty Land Tax Rates for residential properties purchased from 23rd September 2022 and second homes from 31st October 2024. For more information on Stamp Duty Land Tax, click here.
3 bedroom Semi Detached House for sale, Foxton Avenue, North Shields, Tyne and Wear, NE30
Features and Description
- Stylish Extended three bedroom semi detached house
- Open plan kitchen dining and family room
- Land scaped rear garden, garage and drive
- Total floor area space
- Freehold, EPC Rating to follow
- Council Tax Band C
This immaculately presented and stylish extended family home offers three well-proportioned bedrooms, a garage, and attractive gardens, making it an ideal choice for modern family living. Situated in a highly sought-after area of Cullercoats, the property is perfectly placed just a short distance from the beautiful seafront, where you can enjoy sandy beaches, coastal walks, and vibrant cafés and restaurants.
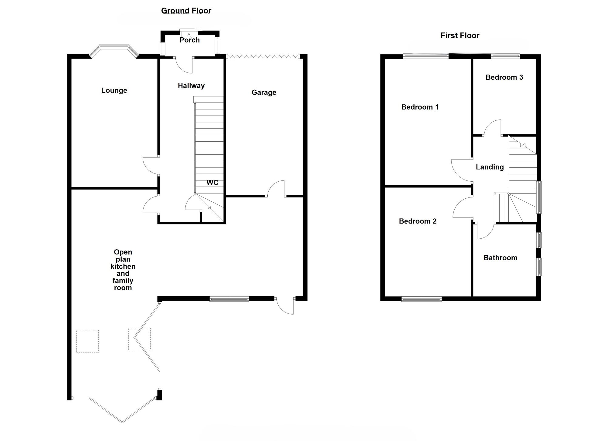
The property is immaculately presented throughout with stylish open plan dining kitchen and family room to the rear making it the heart of this beautiful home. Benefiting from double glazing, gas central heating and briefly comprising of: Entrance porch, entrance hallway, cloaks WC, lounge to the front, open plan extended dining kitchen and family room with Bi-fold doors leading out to the rear garden. To the first floor there are three bedrooms and a family bathroom/WC. Externally there is a landscaped rear garden, front garden, garage storage and drive providing off street parking. Viewing is highly recommended
Located in Cullercoats, this charming seaside village boasts beautiful sandy beaches stretching along the coastline towards Whitley Bay and Tynemouth. A variety of local shops and amenities are right on the doorstep, with popular schools close by. Excellent transport links, including nearby Metro services, make commuting convenient and accessible.
Freehold
EPC Rating to follow
North Tyneside Council Tax Band C
Entrance porch
Double glazed door and windows, tiled flooring, and wood Oak door leading into:
Entrance Hallway
Wood flooring, radiator, stairs to first floor, half wood panelling to walls, under stairs storage cupboards, and doors off.
Cloaks WC
Corner WC.
Lounge
14'0" x 12'8" (4.27m x 3.86m)
Double glazed bay window to the front with fitted shutters, chimney breast with open recess, tiled hearth and wood burning stove, wood flooring, radiator, coving to ceiling.
Open plan dining kitchen and family room
6.78m x 7.04m to longest points
Fitted with a a range of stylish modern wall and base units with granite work surfaces and breakfast bar, integrated sink and drainer, built in electric oven, integrated microwave, fridge, freezer, dish washer, five burner gas hob with extractor chimney above, double glazed window and door to the rear, door to garage, tiled flooring, open chimney recess with Oak wood mantle, double glazed Velux windows and Bi-Fold doors to the rear and side, and radiator.
First floor landing
Double glazed stained glass window to the side, loft access and doors off to:
Bedroom 1
11'6" x 10'6" (3.50m x 3.20m)
Double glazed window to the front with fitted shutters, feature cast iron fireplace, fitted wardrobes to alcoves and radiator.
Bedroom 2
11'6" x 12'3" (3.50m x 3.73m)
Double glazed window to the rear with fitted shutters, fitted wardrobes, polished floor boards and radiator.
Bedroom 3
8'2" x 7'4" (2.50m x 2.24m)
Double glazed window to the front with fitted shutters, radiator.
Bathroom / WC
7'11" x 7'4" (2.41m x 2.24m)
Panelled bath with mixer shower taps, low level WC, pedestal wash hand basin, heated towel rail, two double glazed frosted windows to the side, storage cupboard.
External
Rear garden- Fenced to sides and rear, tiled patio areas, sleeper borders with shrubs, artificial grass.Front garden- Artificial grass with walled and wrought iron railings.
Garage and drive
Roller door, power and lighting, plumbed for washing machine, wall mounted boiler.Block paved drive with double wrought iron gates.
IMPORTANT NOTE TO POTENTIAL PURCHASERS:
We endeavour to make our particulars accurate and reliable, however, they do not constitute or form part of an offer or any contract and none is to be relied upon as statements of representation or fact. The services, systems and appliances listed in this specification have not been tested by us and no guarantee as to their operating ability or efficiency is given. All photographs and measurements have been taken as a guide only and are not precise. Floor plans where included are not to scale and accuracy is not guaranteed. If you require clarification or further information on any points, please contact us, especially if you are travelling some distance to view. Fixtures and fittings other than those mentioned are to be agreed with the seller.
Foxton Avenue, North Shields, Tyne and Wear, NE30
Additional Information
-
Property refWBA250456
-
TenureFreehold
-
Council TaxC
-
Local authorityNorth Tyneside Council - Council tax
Similar properties for sale by Your Move Whitley Bay
The pin shows the exact address of the property
Energy Efficiency Rating
Very energy efficient - lower running costs
Not energy efficient - higher running costs
Current
N/APotential
N/ACO2 Rating
Very energy efficient - lower running costs
Not energy efficient - higher running costs
