This calculator provides a guide to the amount of residential stamp duty you may pay and does not guarantee this will be the actual cost. This calculation is based on the Stamp Duty Land Tax Rates for residential properties purchased from 23rd September 2022 and second homes from 31st October 2024. For more information on Stamp Duty Land Tax, click here.
3 bedroom Semi Detached House for sale, Laburnum Drive, Oswestry, Shropshire, SY11
Features and Description
- NO CHAIN
- 3 Good Sized Bedrooms
- 2 Receptions
- Kitchen & Utility
- EPC Grade D
- Gated Driveway
- Low Maintenance Rear Garden
- Nts Note
NO CHAIN - This well maintained family home is situated in a popular mature residential area and benefits from a large gated driveway, 2 reception rooms and a bath/shower room. In addition, the property benefits from gas fired radiator central heating and double glazing.
Directions
From the Your Move office turn left onto Leg Street then take the 2nd left onto Middleton Road. Continue over the mini roundabout then take the 2nd right onto Beech Grove then right again onto Laburnum Drive.
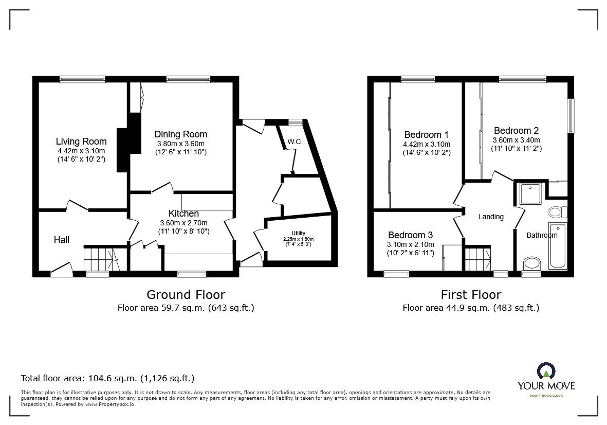
Entrance Hall
Wood effect floor, radiator, stairs to first floor; double glazed window.
Living Room
14'5" x 9'11" (4.40m x 3.02m)
Wood effect floor, radiator, double glazed window.
Dining Room
3.8m x3.03m
Built in cupboard, wood effect floor, radiator, double glazed window.
Kitchen
11'11" x 8'10" (3.62m x 2.70m)
Built in cupboards, sink unit, electric cooker point, Worcester gas fired combination boiler, double glazed window.
Side Lobby
Doors to front & rear access.
Utility Room
9'0" x 5'5" (2.75m x 1.65m)
Power & light connected, double glazed window.
Cloakroom
Comprising WC, wash basin, double glazed window.
First Floor
Access to loft space.
Bedroom 1
11'2" x 9'10" (3.40m x 3.00m)
Bult in wardrobes, radiator, double glazed window.
Bedroom 2
14'5" x 7'10" (4.40m x 2.40m)
Bult in wardrobe, radiator, double glazed window.
Bedroom 3
10'2" x 6'11" (3.10m x 2.12m)
Bult in wardrobe, radiator, double glazed window.
Bath / Shower Room
Comprising WC, wash basin, bath, shower cubicle, towel radiator, double glazed window.
Front Garden
Double gated driveway with parking for several cars.
Rear Garden
A low maintenance rear garden with patio area.
Agents Note
Shropshire Council - Council Tax Band BThe property is Freehold
IMPORTANT NOTE TO POTENTIAL PURCHASERS:
We endeavour to make our particulars accurate and reliable, however, they do not constitute or form part of an offer or any contract and none is to be relied upon as statements of representation or fact. The services, systems and appliances listed in this specification have not been tested by us and no guarantee as to their operating ability or efficiency is given. All photographs and measurements have been taken as a guide only and are not precise. Floor plans where included are not to scale and accuracy is not guaranteed. If you require clarification or further information on any points, please contact us, especially if you are travelling some distance to view. Fixtures and fittings other than those mentioned are to be agreed with the seller.
Laburnum Drive, Oswestry, Shropshire, SY11
Additional Information
-
Property refOSW210280
-
EPCD
-
TenureFreehold
-
Council TaxB
-
Local authorityShropshire Council
Wood effect floor, radiator, double glazed window.
Built in cupboard, wood effect floor, radiator, double glazed window.
Built in cupboards, sink unit, electric cooker point, Worcester gas fired combination boiler, double glazed window.
Bult in wardrobes, radiator, double glazed window.
Bult in wardrobe, radiator, double glazed window.
Bult in wardrobe, radiator, double glazed window.
Comprising WC, wash basin, bath, shower cubicle, towel radiator, double glazed window.
A low maintenance rear garden with patio area.
The pin shows the exact address of the property
Energy Efficiency Rating
Very energy efficient - lower running costs
Not energy efficient - higher running costs
Current
68Potential
75CO2 Rating
Very energy efficient - lower running costs
Not energy efficient - higher running costs
