This calculator provides a guide to the amount of residential stamp duty you may pay and does not guarantee this will be the actual cost. This calculation is based on the Stamp Duty Land Tax Rates for residential properties purchased from 23rd September 2022 and second homes from 31st October 2024. For more information on Stamp Duty Land Tax, click here.












2 bedroom Semi Detached House for sale, Linnel Drive, Newcastle upon Tyne, Tyne and Wear, NE15
Features and Description
- Two Bedroom Semi Detached House
- Well presented throughout
- No Upper Chain
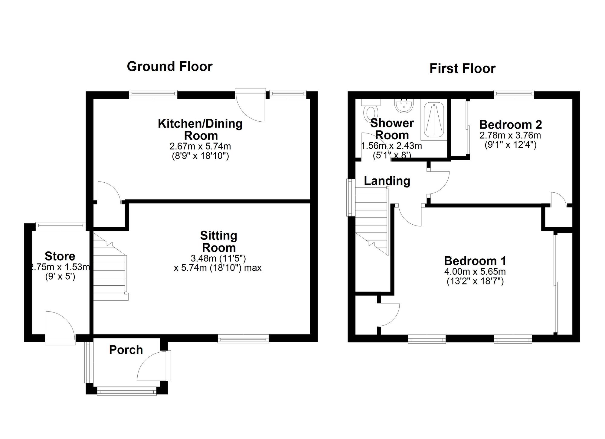
- Floor Area - Approximate 764 Sq.ft / 71 Sq.m
- Council Tax Band - A
- EPC Rating - D
A well presented and spacious two-bedroom semi-detached home, ideally positioned on Linnel Drive and enjoying a pleasant outlook over woodland.
Offered to the market with no onward chain, this property makes an ideal first purchase. Conveniently located close to a range of local amenities, as well as excellent bus and road links to surrounding areas.
The accommodation briefly comprises: entrance porch leading into a bright open-plan lounge with feature fireplace and spindle staircase. The modern kitchen offers a range of wall, base, and drawer units, together with integrated appliances including a fridge, freezer, dishwasher, washing machine, electric oven and hob, as well as a free-standing tumble dryer. There is also a breakfasting area, pantry cupboard, and door giving access to the rear garden.
To the first floor is a landing with loft hatch and drop-down ladder leading to a fully boarded loft with two Velux windows, providing excellent additional storage. There are two double bedrooms, both with fitted wardrobes and storage cupboards, and a shower room comprising of a white three piece suite.
Externally, the property benefits from an enclosed rear garden with decked patio area, side storage, and a paved driveway with gates to the front providing off-street parking.
Lemington is an accessible village to the west of Newcastle city centre. It provides excellent transport links in all directions as well as easy access across the river over the nearby Scotswood Bridge. The A1 and A69 are also close at hand. Lemington benefits from a range of local services including schools, shops and library, all of which are within easy walking distance of the property.
We understand the property is freehold.
IMPORTANT NOTE TO POTENTIAL PURCHASERS:
We endeavour to make our particulars accurate and reliable, however, they do not constitute or form part of an offer or any contract and none is to be relied upon as statements of representation or fact. The services, systems and appliances listed in this specification have not been tested by us and no guarantee as to their operating ability or efficiency is given. All photographs and measurements have been taken as a guide only and are not precise. Floor plans where included are not to scale and accuracy is not guaranteed. If you require clarification or further information on any points, please contact us, especially if you are travelling some distance to view. Fixtures and fittings other than those mentioned are to be agreed with the seller.
Linnel Drive, Newcastle upon Tyne, Tyne and Wear, NE15

Additional Information
-
Property refQWD250691
-
EPCD
-
TenureFreehold
-
Council TaxA
-
Local authorityNewcastle City Council

Similar properties for sale by Your Move West Denton












The pin shows the exact address of the property
Energy Efficiency Rating
Very energy efficient - lower running costs
Not energy efficient - higher running costs
Current
58Potential
80CO2 Rating
Very energy efficient - lower running costs
Not energy efficient - higher running costs