Main image of 3 bedroom Semi Detached House for sale, Redewood Close, Newcastle upon Tyne, Tyne and Wear, NE5
Image 2
Image 3
Image 4
Image 5
Image 6
Image 7
Image 8
Image 9
Image 10
Image 11
Image 12
£170,000 Asking price

3 bedroom Semi Detached House for sale,
Redewood Close, Newcastle upon Tyne, Tyne and Wear, NE5

Features and Description

  • Three bedroom semi-detached house
  • Triple length drive and garage
  • Well presented throughout
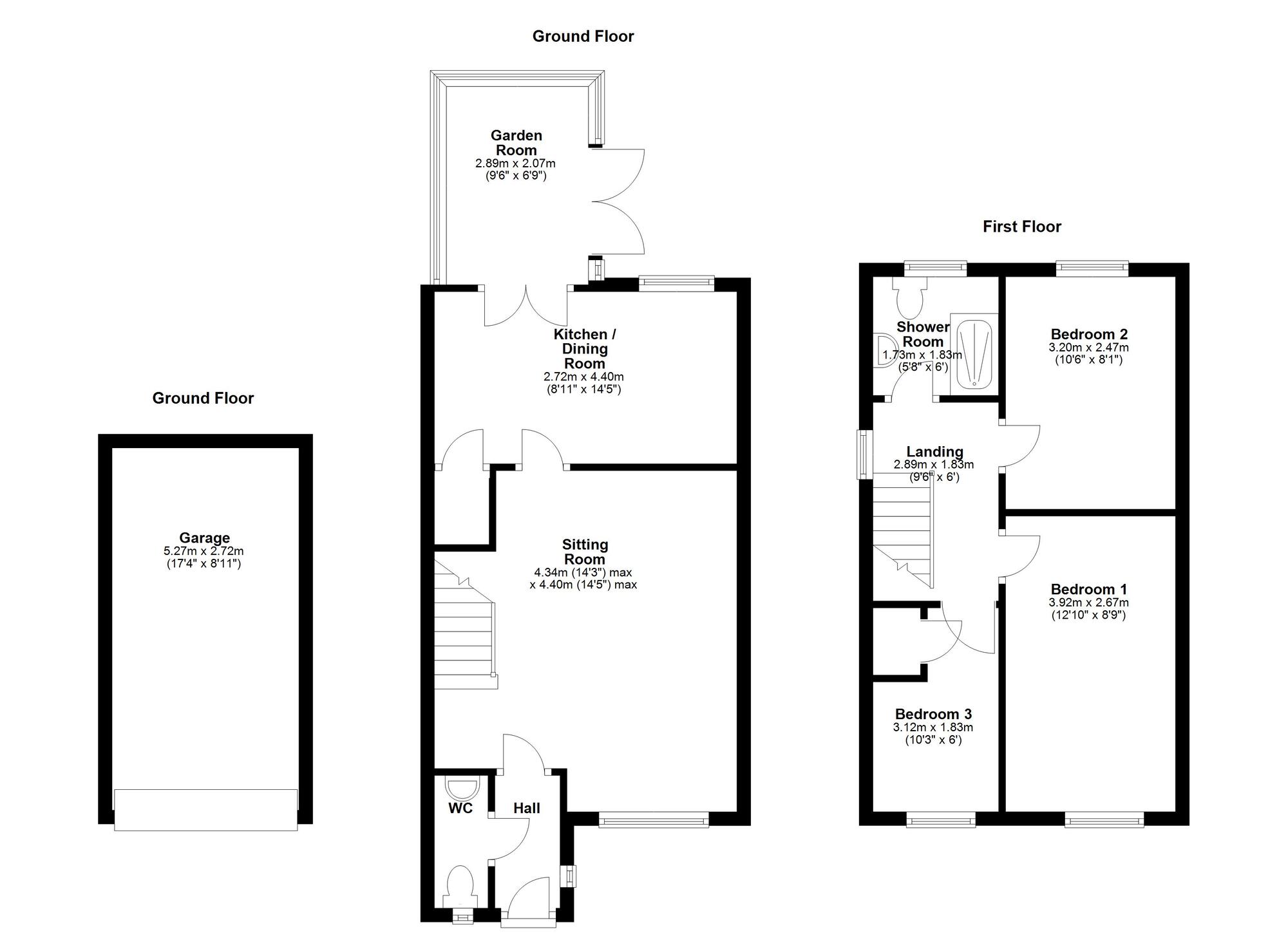
  • Floor Area - Approximate 796 Sq.ft / 74 Sq.m
  • Council Tax Band - B
  • EPC Rating - C

We are proud to welcome this well presented spacious three bedroom semi detached house to the market, located within Slatyford.

The property is well presented throughout and enjoys a number of features which should appeal to buyers. These include; gas central heating , double glazing and the fantastic conservatory to the rear. Viewing is an absolute must.

The accommodation to the ground floor briefly comprises of entrance hall, WC, lounge, lovely kitchen/dining room and garden room with access to the rear garden.

To the first floor is a landing, three bedrooms and a shower room comprising of three piece white suite.

Externally, the property benefits from a small lawn to the front, a triple length drive and garage to the side and a good sized private garden to the rear.

The property is located in the popular area of Slatyford. There are numerous bus routes and transport links in the area giving access to the city centre. The A1 and A69 are both close at hand linking to the central motorway network.

Redewood Close, Newcastle upon Tyne, Tyne and Wear, NE5

Additional Information

  • Property ref
    QWD250628
  • EPC
    C
  • Tenure
    Leasehold
  • Lease length
    72 years
  • Council Tax
    B
  • Local authority
    Newcastle Upon Tyne City Council
  • Ground Rent
    £40
  • Ground Rent Review
    Contact the branch
  • Service Charge
    Contact the branch
Tim Hawe Branch Manager
Tim Hawe
Director

Do you have a property you need to sell?

Book a free valuation to get an accurate valuation of how much your home is worth.

Your Move Estate Agents West Denton

West Denton Branch Manager
Your Move West Denton
130 The Roman Way, West Denton, NE5 5AD
Mon - Fri09:00 - 17:00Saturday09:00 - 13:00SundayClosed

Buyer Tools

Mortgage Calculator

Monthly payment

£

Borrowing £153,000 and repaying over 25 years with a 2.5% interest rate.

Now you know what you could be paying, book an appointment with our partners Embrace Financial Services to find the right mortgage for you.

Stamp duty calculator

Calculate

You would pay

This calculator provides a guide to the amount of residential stamp duty you may pay and does not guarantee this will be the actual cost. This calculation is based on the Stamp Duty Land Tax Rates for residential properties purchased from 23rd September 2022 and second homes from 31st October 2024. For more information on Stamp Duty Land Tax, click here.

Nearby locations
Photos
Floorplan
Map view
Street view

The pin shows the exact address of the property

Energy Efficiency Rating

Very energy efficient - lower running costs

(92 plus) A
(81 - 91) B
(69 - 80) C
(55 - 68) D
(39 - 54) E
(21 - 38) F
(1 - 20) G

Not energy efficient - higher running costs

Current

69

Potential

76

CO2 Rating

Very energy efficient - lower running costs

(92 plus) A
(81 - 91) B
(69 - 80) C
(55 - 68) D
(39 - 54) E
(21 - 38) F
(1 - 20) G

Not energy efficient - higher running costs

Current

N/A

Potential

N/A