This calculator provides a guide to the amount of residential stamp duty you may pay and does not guarantee this will be the actual cost. This calculation is based on the Stamp Duty Land Tax Rates for residential properties purchased from 23rd September 2022 and second homes from 31st October 2024. For more information on Stamp Duty Land Tax, click here.
3 bedroom Semi Detached House for sale, Sancroft Drive, Houghton Le Spring, Tyne and Wear, DH5
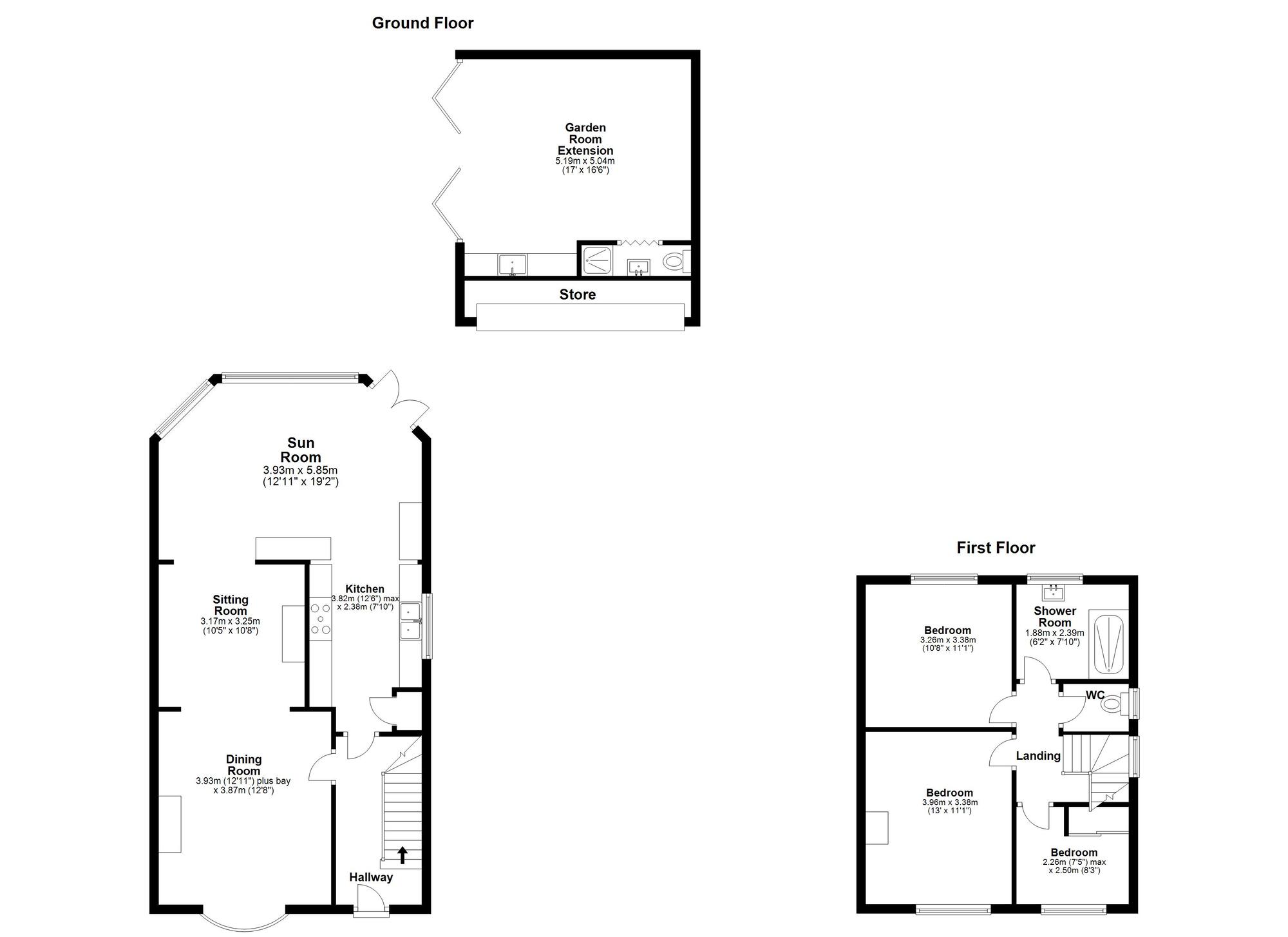
Features and Description
- Immaculate 3 Bed Family Home
- Self Contained Garden Room
- No Upward Chain
- Approx. 121SqM -1,302SqFt
- Council Tax Band B
- Freehold
- EPC Rating D
Extended and significantly improved this 3 bedroom family home now includes a most impressive self contained air conditioned Garden Room that includes its own kitchen and shower room and High-Tech Surround Sound System.
Beautifully presented throughout including a new fitted kitchen and media wall this home gives the opportunity for any new owner to be able to move in and just relax.
There is an open plan feel to the ground floor with a spacious Hallway guiding you into the Dining Room, which flows directly into the Sitting Room which enjoys a media wall. This in turn is open into a full width Sun Room/Living Space and all three reception areas are now served by the newly installed Kitchen that has a range of built in appliances.
The Bedrooms on the first floor are served by a modern Shower Room and useful separate WC and the loft is fully boarded
The gardens to both front and rear are well landscaped to include patio, decking, lawns and flower boarders with the rear being South West facing. A sweeping brick block driveway provides ample off-street parking and storage has been retained as part of the double garage conversion.
Tucked into the corner of this small cul-de-sac on the edge of the town centre where a wide choice of shopping, schooling of all grades, health and leisure facilities are all close at hand
IMPORTANT NOTE TO POTENTIAL PURCHASERS:
We endeavour to make our particulars accurate and reliable, however, they do not constitute or form part of an offer or any contract and none is to be relied upon as statements of representation or fact. The services, systems and appliances listed in this specification have not been tested by us and no guarantee as to their operating ability or efficiency is given. All photographs and measurements have been taken as a guide only and are not precise. Floor plans where included are not to scale and accuracy is not guaranteed. If you require clarification or further information on any points, please contact us, especially if you are travelling some distance to view. Fixtures and fittings other than those mentioned are to be agreed with the seller.
Sancroft Drive, Houghton Le Spring, Tyne and Wear, DH5
 
        Additional Information
- 
                    Property refQHO250332
- 
                    EPCD
- 
                    TenureFreehold
- 
                    Local authoritySunderland City Council
 
        Similar properties for sale by Your Move Houghton-le-Spring
 
         
         
         
         
         
         
         
         
         
         
         
         
         
         
         
         
         
         
        The pin shows the exact address of the property
Energy Efficiency Rating
Very energy efficient - lower running costs
Not energy efficient - higher running costs
Current
64Potential
76CO2 Rating
Very energy efficient - lower running costs
Not energy efficient - higher running costs

 
         
         
         
         
         
         
        