This calculator provides a guide to the amount of residential stamp duty you may pay and does not guarantee this will be the actual cost. This calculation is based on the Stamp Duty Land Tax Rates for residential properties purchased from 23rd September 2022 and second homes from 31st October 2024. For more information on Stamp Duty Land Tax, click here.
 
         
         
         
        2 bedroom  Flat for sale, Brussels Road, Wallsend, Tyne and Wear, NE28
Features and Description
- Two Bedroom First Floor Flat
- Tenant In Situ
- Good Location
- Approx SQ M 77
- North Tyneside Council Tax Band A
- EPC Grade D
Offered at auction this two bed upper flat conveniently located close to local amenities and Wallsend Metro Station,.
The flat is currently tenanted, by a longstanding tenant and the monthly rental income of £520pcm. This offers a secure and established income stream for any investor.
The property comprises of a spacious lounge with feature fireplace, a fitted kitchen, two bedrooms, and a bathroom with white suite and shower.
This is an attractive opportunity for investors seeking a ready made buy to let with immediate rental return in a popular central location.
Leasehold
North Tyneside Council Tax Band A
EPC Grade D
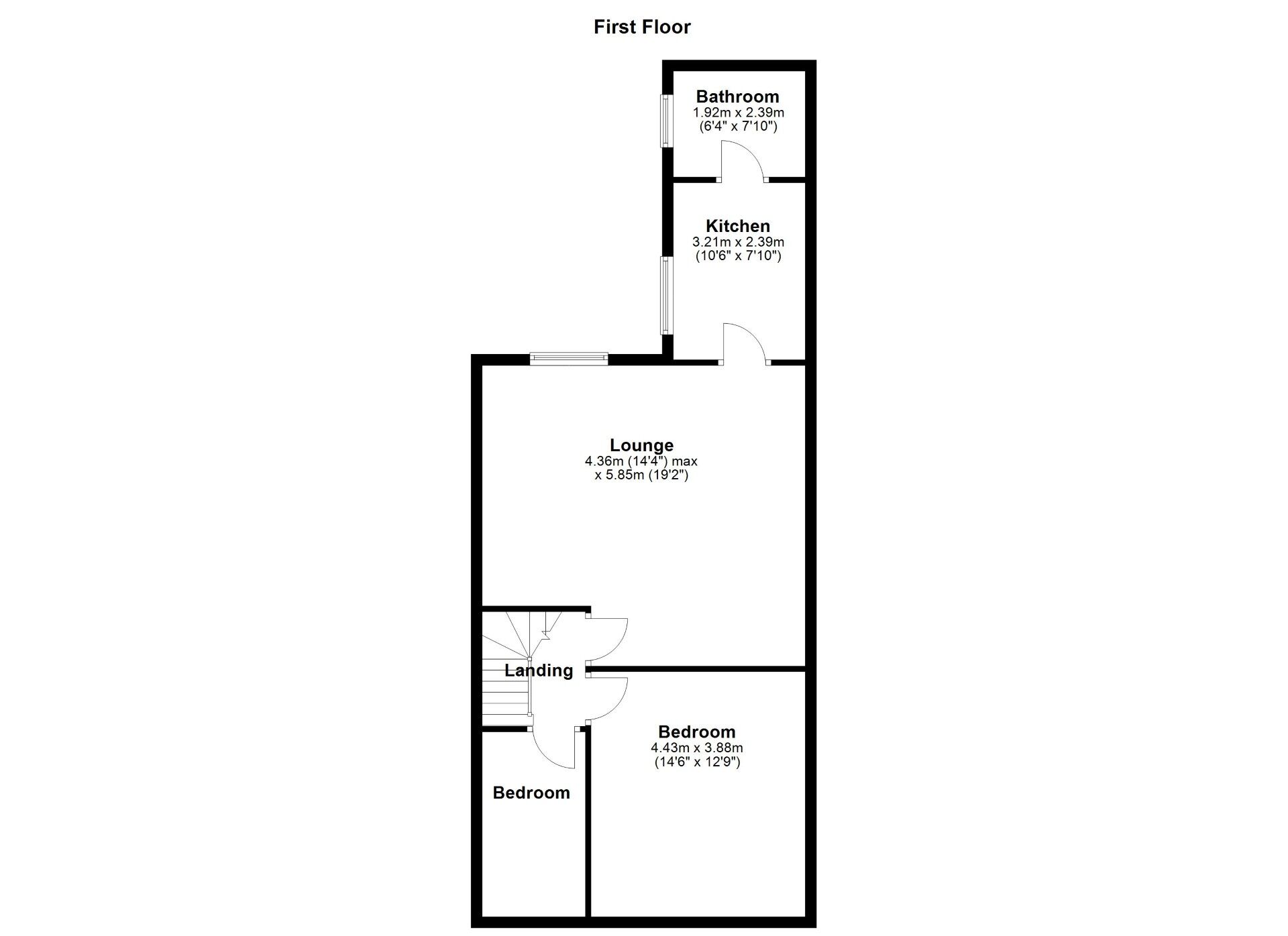
Lounge
14'4" x 19'2" (4.36m x 5.85m)
Kitchen
10'6" x 7'10" (3.21m x 2.39m)
Bathroom
6'3" x 7'7" (1.90m x 2.31m)
Master Bedroom
3.87m x 4.43
IMPORTANT NOTE TO POTENTIAL PURCHASERS:
We endeavour to make our particulars accurate and reliable, however, they do not constitute or form part of an offer or any contract and none is to be relied upon as statements of representation or fact. The services, systems and appliances listed in this specification have not been tested by us and no guarantee as to their operating ability or efficiency is given. All photographs and measurements have been taken as a guide only and are not precise. Floor plans where included are not to scale and accuracy is not guaranteed. If you require clarification or further information on any points, please contact us, especially if you are travelling some distance to view. Fixtures and fittings other than those mentioned are to be agreed with the seller.
Brussels Road, Wallsend, Tyne and Wear, NE28
 
        Additional Information
- 
                    Property refWSD250475
- 
                    EPCD
- 
                    TenureLeasehold
- 
                    Lease length961 years
- 
                    Council TaxA
- 
                    Local authorityNorth Tyneside Council - Council tax
- 
                    Ground RentContact the branch
- 
                    Ground Rent ReviewContact the branch
- 
                    Service ChargeContact the branch
 
         
         
         
         
        The pin shows the exact address of the property
Energy Efficiency Rating
Very energy efficient - lower running costs
Not energy efficient - higher running costs
Current
58Potential
60CO2 Rating
Very energy efficient - lower running costs
Not energy efficient - higher running costs

 
         
         
         
         
         
         
        