This calculator provides a guide to the amount of residential stamp duty you may pay and does not guarantee this will be the actual cost. This calculation is based on the Stamp Duty Land Tax Rates for residential properties purchased from 23rd September 2022 and second homes from 31st October 2024. For more information on Stamp Duty Land Tax, click here.


















2 bedroom Detached Bungalow for sale, Brynsmoor Road, Brinsley, Nottinghamshire, NG16
Features and Description
- Bright two-bedroom bungalow
- Spacious garden for entertaining
- Large driveway
- Opposite small shopping area
- Main bedroom with garden view
- Close to public transport links
- Near parks and local amenities
- Ideal investment or project home NO CHAIN !
- Peaceful and friendly neighbourhood
Welcome to this charming two-bedroom bungalow, available for sale and brimming with opportunity! Nestled in a location that truly ticks all the boxes, you’ll find yourself just moments from handy public transport links, well-stocked local amenities opposite, and the peace and tranquillity of nearby parks—perfect for leisurely strolls.
Step inside, and you’ll discover two bright reception rooms, offering flexible spaces for relaxing, entertaining guests, or enjoying quiet evenings in. The well-laid-out kitchen is great for culinary enthusiasts or simple meals alike. The two bedrooms offer comfortable accommodation, with the main bedroom enjoying a lovely garden view. Wake up to greenery and the soft sounds of nature right outside your window.
There’s also a convenient showerroom for daily routines. Outside, the bungalow boasts a generous garden—an ideal spot for summer gatherings, pottering with plants, or simply soaking up the sunshine. Private parking is included, taking the worry out of daily life and offering a warm welcome every time you come home.
The property is in need of redecoration and alteration, making it a fantastic project for investors or those seeking to put their personal stamp on their next home. With an EPC rating of D and situated in Council Tax Band C, this property offers both convenience and potential.
Don’t miss your chance to secure this friendly bungalow—your next chapter could start here!
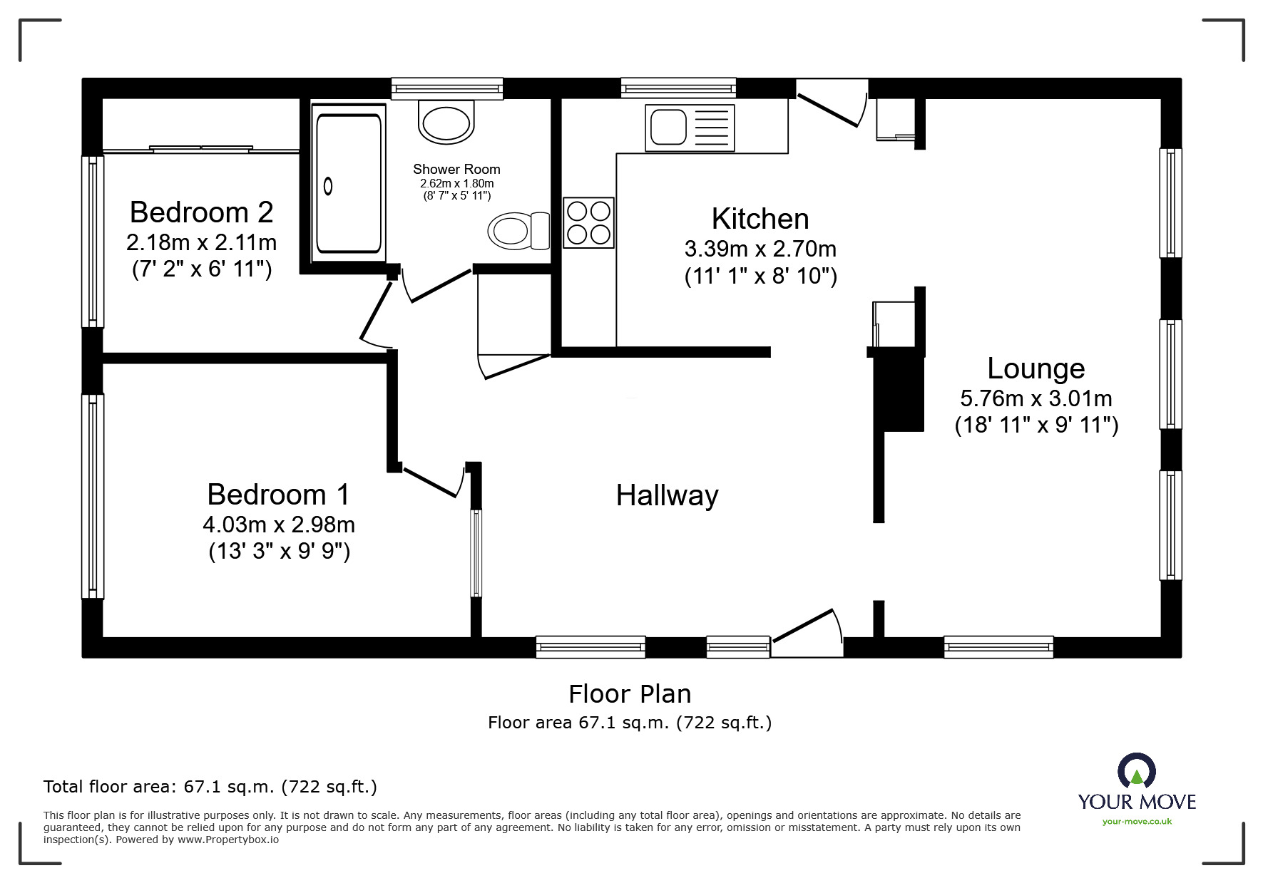
Reception hall / Dining Room
12,4m x 9.9m
Build in storage cupboard and open access to lounge and kitchen . Double glazed window and door to side elevation.
Kitchen
36'5" x 26'7" (11.10m x 8.10m)
Lounge
9,10m x 18.10m
Having an open door way to dining area and three double glazed windows to front elevation.
Bathroom
28'7" x 16'9" (8.70m x 5.10m)
Bedroom 1
20'1" x 23'4" (6.11m x 7.10m)
Two build in fitted wardrobes giving storage space and double glazed window to rear elevation.
Bedroom 2
43'4" x 32'6" (13.20m x 9.90m)
Double glazed window to rear elevation.
Front garden
Access via wrought iron gates with retainer wall there is a large driveway leading to garage with up and over door and a block paved patio area to the front with shrub borders to the sides.
Bathroom
Fitted with a three piece suite incorporating a close coupled WC, pedestal wash hand basin and walk in shower currently having disabled seat and fitting.
Rear garden
Being mainly laid to lawn with a paved patio.
Broxtowe Borough Council
Band C
EPC rateing
C
Buyer guide
https://reports.sprift.com/property-report/4-brynsmoor-road-nottingham-ng16-5dd/4726118
IMPORTANT NOTE TO POTENTIAL PURCHASERS:
We endeavour to make our particulars accurate and reliable, however, they do not constitute or form part of an offer or any contract and none is to be relied upon as statements of representation or fact. The services, systems and appliances listed in this specification have not been tested by us and no guarantee as to their operating ability or efficiency is given. All photographs and measurements have been taken as a guide only and are not precise. Floor plans where included are not to scale and accuracy is not guaranteed. If you require clarification or further information on any points, please contact us, especially if you are travelling some distance to view. Fixtures and fittings other than those mentioned are to be agreed with the seller.
Brynsmoor Road, Brinsley, Nottinghamshire, NG16

Additional Information
-
Property refILK250486
-
EPCD
-
TenureFreehold
-
Council TaxC
-
Local authorityBroxtowe Borough Council



Having an open door way to dining area and three double glazed windows to front elevation.

Two build in fitted wardrobes giving storage space and double glazed window to rear elevation.

Double glazed window to rear elevation.














The pin shows the exact address of the property
Energy Efficiency Rating
Very energy efficient - lower running costs
Not energy efficient - higher running costs
Current
65Potential
86CO2 Rating
Very energy efficient - lower running costs
Not energy efficient - higher running costs