This calculator provides a guide to the amount of residential stamp duty you may pay and does not guarantee this will be the actual cost. This calculation is based on the Stamp Duty Land Tax Rates for residential properties purchased from 23rd September 2022 and second homes from 31st October 2024. For more information on Stamp Duty Land Tax, click here.




















5 bedroom Detached House for sale, Aspley Close, Sunderland, SR3
Features and Description
- Detached Family Home
- Modern Throughout
- Conservatory
- Ground Floor Shower Room
- EPC Rating C
- Sunderland City Council, Tax Band D
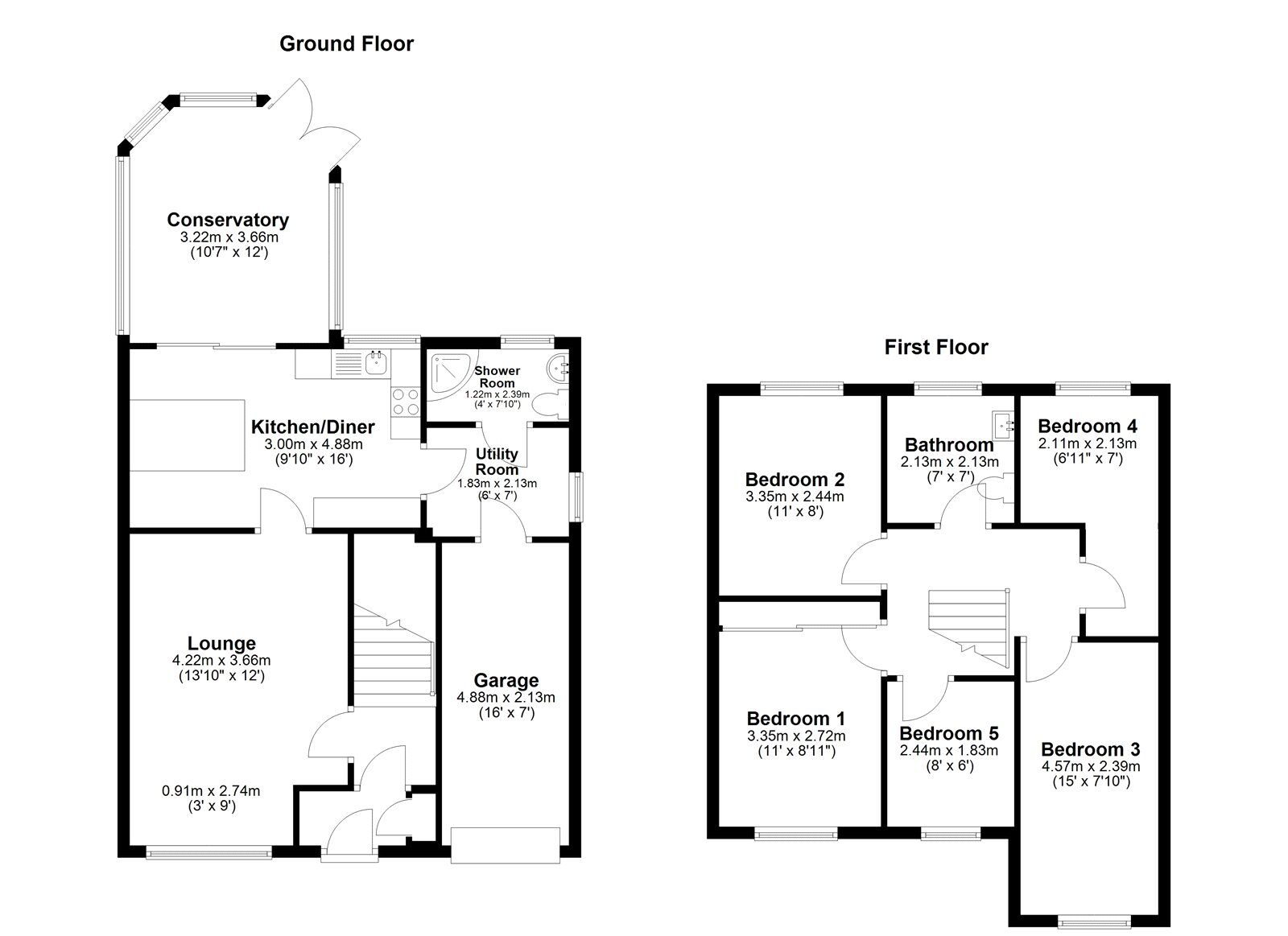
Situated in a highly desirable area of Doxford Park, this impressive five bedroom detached residence offers a beautifully presented, move in ready home ideal for modern family living.
The property has been thoughtfully updated throughout, combining contemporary style with practical design. The accommodation comprises an inviting entrance porch leading into a spacious lounge. The modern kitchen/diner has been upgraded to include a stylish island/breakfast bar, creating a wonderful social hub for everyday living and entertaining. Additional ground floor features include a convenient utility room, a shower room, and a bright conservatory overlooking the private rear garden.
To the first floor, there are five well proportioned bedrooms and a well appointed family bathroom featuring a luxurious freestanding bath.
Externally, the home boasts a private rear garden bordered by mature shrubs offering excellent privacy, while to the front, a driveway provides off street parking and access to an integral garage.
This superb property offers a modern style home within a highly sought after location close to local amenities, reputable schools, and excellent transport links.
Lounge
12'6" x 13'10" (3.80m x 4.22m)
Kitchen Diner
15'6" x 9'10" (4.72m x 3.00m)
Conservatory
12'6" x 13'1" (3.80m x 4.00m)
Shower Room
7'10" x 4'4" (2.40m x 1.32m)
Bedroom 1
2.72m x 3.35m (excluding fitted wardrobes)
Bedroom 2
7'10" x 15'3" (2.40m x 4.65m)
Bedroom 3
8'4" x 11'1" (2.54m x 3.38m)
Bedroom 4
7'9" x 6'11" (2.36m x 2.10m)
Bedroom 5
6'6" x 8'1" (1.98m x 2.46m)
Bathroom
6'12" x 7'1" (2.13m x 2.16m)
Garage
7'9" x 16'9" (2.36m x 5.10m)
IMPORTANT NOTE TO POTENTIAL PURCHASERS:
We endeavour to make our particulars accurate and reliable, however, they do not constitute or form part of an offer or any contract and none is to be relied upon as statements of representation or fact. The services, systems and appliances listed in this specification have not been tested by us and no guarantee as to their operating ability or efficiency is given. All photographs and measurements have been taken as a guide only and are not precise. Floor plans where included are not to scale and accuracy is not guaranteed. If you require clarification or further information on any points, please contact us, especially if you are travelling some distance to view. Fixtures and fittings other than those mentioned are to be agreed with the seller.
Aspley Close, Sunderland, SR3

Additional Information
-
Property refSUN250637
-
EPCC
-
TenureFreehold
-
Council TaxD

Similar properties for sale by Your Move Sunderland




















The pin shows the exact address of the property
Energy Efficiency Rating
Very energy efficient - lower running costs
Not energy efficient - higher running costs
Current
72Potential
86CO2 Rating
Very energy efficient - lower running costs
Not energy efficient - higher running costs