This calculator provides a guide to the amount of residential stamp duty you may pay and does not guarantee this will be the actual cost. This calculation is based on the Stamp Duty Land Tax Rates for residential properties purchased from 23rd September 2022 and second homes from 31st October 2024. For more information on Stamp Duty Land Tax, click here.
 
         
         
         
         
         
         
        3 bedroom Detached House for sale, Chaukers Crescent, Lowestoft, Suffolk, NR33
Features and Description
- Detached Home
- Three Bedrooms
- Downstairs WC, Upstairs Bathroom
- Conservatory
- Utility Room
- Garage with Driveway
- South Lowestoft
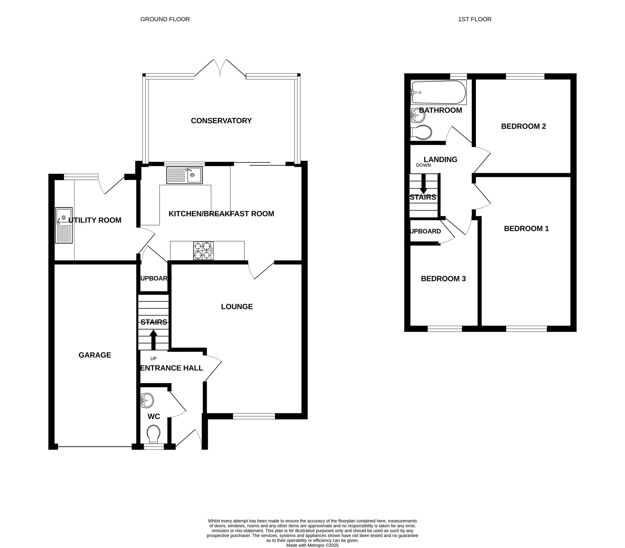
Entrance Hall – Door to front aspect, staircase to first floor, radiator and coved celling
Downstairs Cloakroom/WC – Double glazed window to front aspect, low level WC, handwash basin with tiled splash back, radiator and coved celling
Lounge – Double glazed window to front aspect, radiator, wood effect flooring and coved celling
Kitchen – Double glazed window and sliding patio door into conservatory, range of wall and base units including worktop space, drawers and cupboards under, cupboards above, sink and drainer with tiled splash back, plumbing for dishwasher, built in oven, built in gas hob with extractor fan above, space for fridge freezer, under stairs storage cupboard , tiled flooring and coved celling
Utility Room – Double glaze door and window to rear garden, worktop space with draw and cupboards under, cupboards above, sink with drainer with tiled splash back, plumbing for washing machine, space for tumble dryer, boiler to wall, radiator, tiled flooring and coved celling
Conservatory – uPVC double glaze double doors into rear garden, uPVC double glaze windows surround, brick built base, power and lighting
First Floor Landing – Double glaze window to side aspect and coved celling
Bedroom One – Double glaze window to front aspect, radiator and coved celling
Bedroom Two – Double glaze window to rear aspect, radiator and coved celling
Bedroom Three – Double glaze window to front aspect, radiator, built in above stair cupboard and coved celling
Bathroom – Double glaze window to rear aspect, low level WC, handwash basin, bath with triton shower above, fully tiled to walls, radiator, tiled effect flooring and coved celling
Outside To Front – Mainly laid to lawn, driveway leading to garage, stoned area, gate to side aspect
Garage – Roller Door , power, lighting, roof access to storage
Outside Rear – Mainly laid to lawn, patio area, and fencing surround
Entrance Hall
Door to front aspect, staircase to first floor, radiator and coved celling
Cloakroom / WC
Double glazed window to front aspect, low level WC, handwash basin with tiled splash back, radiator and coved celling
Sitting Room / Diner
14ft9 x 12ft11
Double glazed window to front aspect, radiator, wood effect flooring and coved celling
Kitchen
16ft4x9ft5
Double glazed window and sliding patio door into conservatory, range of wall and base units including worktop space, drawers and cupboards under, cupboards above, sink and drainer with tiled splash back, plumbing for dishwasher, built in oven, built in gas hob with extractor fan above, space for fridge freezer, under stairs storage cupboard , tiled flooring and coved celling
Utility Room
8ft2x7ft8
Double glaze door and window to rear garden, worktop space with draw and cupboards under, cupboards above, sink with drainer with tiled splash back, plumbing for washing machine, space for tumble dryer, boiler to wall, radiator, tiled flooring and coved celling
Conservatory
14ft6x8f4
uPVC double glaze double doors into rear garden, uPVC double glaze windows surround, brick built base, power and lighting
First Floor Landing
Double glaze window to side aspect and coved celling
Master Bedroom
14ft11x9ft
Double glaze window to front aspect, radiator and coved celling
Bedroom 2
10ft1x9ft6
Double glaze window to rear aspect, radiator and coved celling
Bedroom 3
10ft7x7ft2
Double glaze window to front aspect, radiator, built in above stair cupboard and coved celling
Bathroom
Double glaze window to rear aspect, low level WC, handwash basin, bath with triton shower above, fully tiled to walls, radiator, tiled effect flooring and coved celling
Outside to Front
Mainly laid to lawn, driveway leading to garage, stoned area, gate to side aspect
Garage
16ft9x8ft4
Roller Door , power, lighting, roof access to storage
Outside to Rear
Mainly laid to lawn, patio area, and fencing surround
IMPORTANT NOTE TO POTENTIAL PURCHASERS:
We endeavour to make our particulars accurate and reliable, however, they do not constitute or form part of an offer or any contract and none is to be relied upon as statements of representation or fact. The services, systems and appliances listed in this specification have not been tested by us and no guarantee as to their operating ability or efficiency is given. All photographs and measurements have been taken as a guide only and are not precise. Floor plans where included are not to scale and accuracy is not guaranteed. If you require clarification or further information on any points, please contact us, especially if you are travelling some distance to view. Fixtures and fittings other than those mentioned are to be agreed with the seller.
Chaukers Crescent, Lowestoft, Suffolk, NR33
 
        Additional Information
- 
                    Property refQBC250255
- 
                    EPCD
- 
                    TenureFreehold
- 
                    Council TaxC
- 
                    Local authorityEast Suffolk Council
 
        Similar properties for sale by Your Move Lowestoft
 
         
         
         
         
         
         
        The pin shows the exact address of the property
Energy Efficiency Rating
Very energy efficient - lower running costs
Not energy efficient - higher running costs
Current
58Potential
84CO2 Rating
Very energy efficient - lower running costs
Not energy efficient - higher running costs

 
         
         
         
         
         
        