This calculator provides a guide to the amount of residential stamp duty you may pay and does not guarantee this will be the actual cost. This calculation is based on the Stamp Duty Land Tax Rates for residential properties purchased from 23rd September 2022 and second homes from 31st October 2024. For more information on Stamp Duty Land Tax, click here.
3 bedroom Detached House for sale, Waldridge Road, Chester Le Street, Durham, DH2
Features and Description
- Three Bedroom Detached
- No Onward Chain
- Driveway & Garage
- EPC Rating Awaited
- Council Tax Band F
- Approx. 203sqm/2195sqft Accommodation
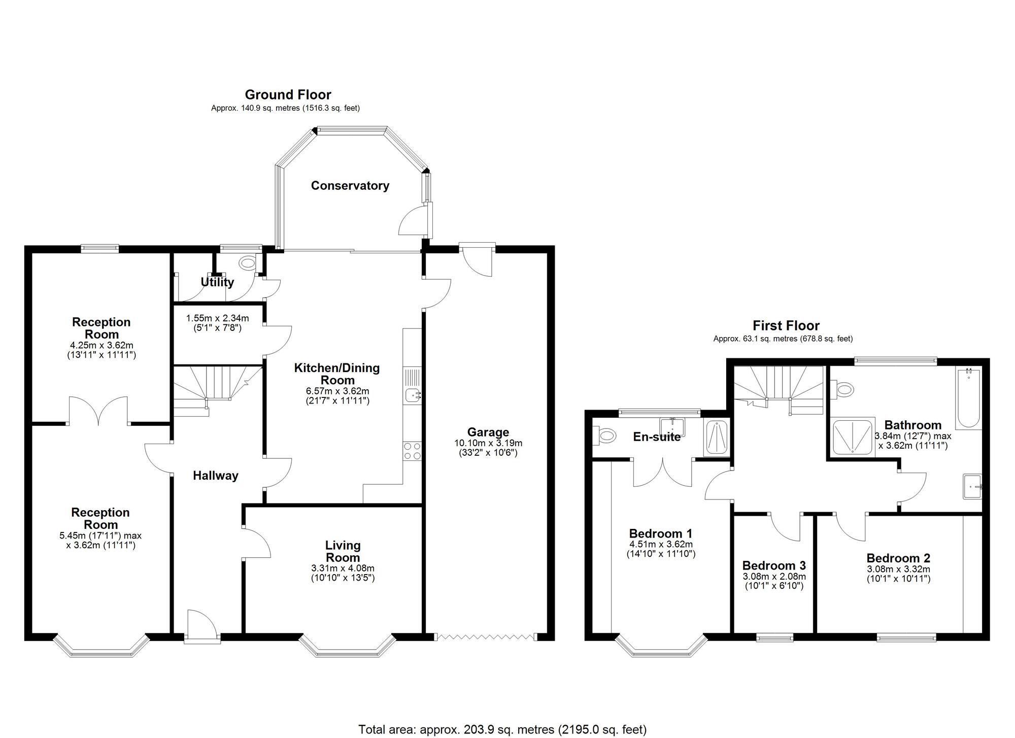
Coming to the market with no onward chain, this spacious three-bedroom detached house offers versatile living and is ideally situated just a short drive from Chester-le-Street town centre, with excellent transport links and nearby local amenities.
Upon entering through the front door, you are greeted by a wide and welcoming hallway. To the right, you’ll find a generously sized living room, perfect for relaxing or entertaining. To the left, a bright second reception room enjoys plenty of natural light and leads into an additional space that could serve as a snug, office, or playroom.
Continuing down the hallway, the large kitchen/dining room provides an abundance of workspace and storage, ideal for family living. From here, you can access a bright conservatory overlooking the spacious rear garden, as well as a substantial garage. The ground floor also benefits from a useful utility room and a convenient downstairs WC.
Upstairs, the home features three well-proportioned bedrooms. The master bedroom includes built-in wardrobes and a modern en-suite shower room, while the second bedroom is also a comfortable double with built-in storage. The third bedroom is ideal as a single bedroom, nursery, or home office. Completing the first floor is a large four-piece family bathroom.
Externally, the property offers a large driveway with parking for at least four vehicles, an attached garage, and side access to a generous rear garden with a patio area, perfect for outdoor dining and entertaining.
IMPORTANT NOTE TO POTENTIAL PURCHASERS:
We endeavour to make our particulars accurate and reliable, however, they do not constitute or form part of an offer or any contract and none is to be relied upon as statements of representation or fact. The services, systems and appliances listed in this specification have not been tested by us and no guarantee as to their operating ability or efficiency is given. All photographs and measurements have been taken as a guide only and are not precise. Floor plans where included are not to scale and accuracy is not guaranteed. If you require clarification or further information on any points, please contact us, especially if you are travelling some distance to view. Fixtures and fittings other than those mentioned are to be agreed with the seller.
Waldridge Road, Chester Le Street, Durham, DH2
Additional Information
-
Property refQCT250554
-
TenureFreehold
-
Council TaxF
-
Local authorityDurham County Council
Similar properties for sale by Your Move Chester-le-Street
The pin shows the exact address of the property
Energy Efficiency Rating
Very energy efficient - lower running costs
Not energy efficient - higher running costs
Current
N/APotential
N/ACO2 Rating
Very energy efficient - lower running costs
Not energy efficient - higher running costs
