This calculator provides a guide to the amount of residential stamp duty you may pay and does not guarantee this will be the actual cost. This calculation is based on the Stamp Duty Land Tax Rates for residential properties purchased from 23rd September 2022 and second homes from 31st October 2024. For more information on Stamp Duty Land Tax, click here.
4 bedroom Detached House for sale, Yarborough Drive, Wheatley, Doncaster, South Yorkshire, DN2
Features and Description
- Detached Family Home
- Popular Development
- Four Good Sized Bedrooms
- En-Suite Shower Room
- Epc Rating Grade B
- Modern Kitchen/Diner
- Useful Utility Room
- Gas Central Heating
- Double Glazing
- Ground Floor Wc
- Front Facing Lounge
- Family Bathroom
- Gardens To Front & Rear
- Drive & Garage
Modern family home situated on popular development, close to city centre & amenities boasting spacious accommodation throughout, book your viewing now.
Location
Wheatley is a very popular suburb on the outskirts of the City Centre and has a vast array of local amenities such as shops, supermarkets and post office. There are excellent transport links such as bus routes and the property is with in easy access to the M18 & A1.
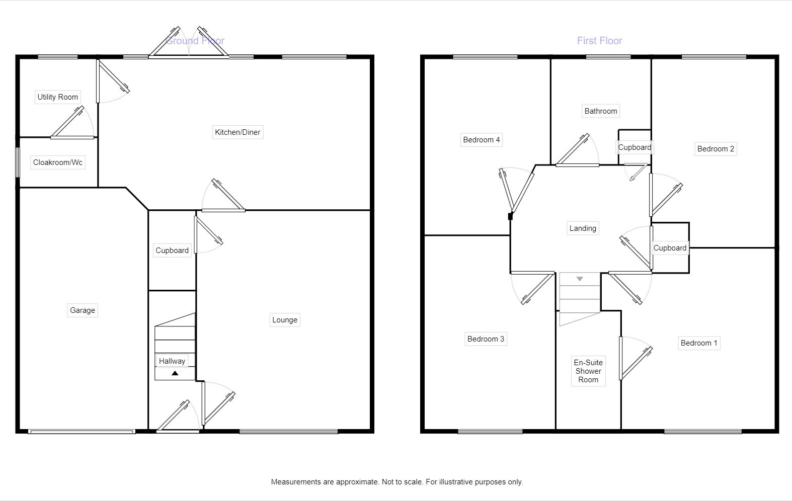
Lounge
11'5" x 14'10" (3.49m x 4.53m)
Kitchen / Diner
17'11" x 9'11" (5.45m x 3.03m)
Utility Room
5'3" x 5'4" (1.61m x 1.62m)
Bedroom 1
10'1" x 10'10" (3.07m x 3.30m)
Bedroom 2
2.49m x 3.78m Max
Bedroom 3
2.66m x 3.92m Max
Bedroom 4
2.6m x 3.73m Max
Family Bathroom / Wc
6'3" x 6'12" (1.91m x 2.13m)
Garage
8'5" x 15'11" (2.57m x 4.84m)
Tenure
Freehold
Local Authority
Doncaster Council
IMPORTANT NOTE TO POTENTIAL PURCHASERS:
We endeavour to make our particulars accurate and reliable, however, they do not constitute or form part of an offer or any contract and none is to be relied upon as statements of representation or fact. The services, systems and appliances listed in this specification have not been tested by us and no guarantee as to their operating ability or efficiency is given. All photographs and measurements have been taken as a guide only and are not precise. Floor plans where included are not to scale and accuracy is not guaranteed. If you require clarification or further information on any points, please contact us, especially if you are travelling some distance to view. Fixtures and fittings other than those mentioned are to be agreed with the seller.
Yarborough Drive, Wheatley, Doncaster, South Yorkshire, DN2
Additional Information
-
Property refDON230470
-
EPCB
-
TenureFreehold
-
Council TaxD
-
Local authorityDoncaster Council
Similar properties for sale by Your Move Doncaster
The pin shows the exact address of the property
Energy Efficiency Rating
Very energy efficient - lower running costs
Not energy efficient - higher running costs
Current
84Potential
94CO2 Rating
Very energy efficient - lower running costs
Not energy efficient - higher running costs
