This calculator provides a guide to the amount of residential stamp duty you may pay and does not guarantee this will be the actual cost. This calculation is based on the Stamp Duty Land Tax Rates for residential properties purchased from 23rd September 2022 and second homes from 31st October 2024. For more information on Stamp Duty Land Tax, click here.
4 bedroom Detached House for sale, Yarmouth Road, Ormesby, Norfolk, NR29
Features and Description
- Impressive New Build Executive Residence
- Sought After Village Location
- Four Bedrooms
- En-Suite to Master
- Spacious Living Areas
- Solid Oak Flooring to Ground Floor
- Air Source Heat Pump
- Ground Floor Underfloor Heating
- 80sqm of Patio & Pathways
- Double Garage with Electric Door
- Superfast Broadband
- Wiring for CCTV
- Wiring for Electric Car Point
** Privately Positioned Stunning New Build Home **
Key Features:
* Impressive New Build Executive Residence
* Sought After Village Location
* Four Bedrooms, En Suite to Principal
* Spacious Living Areas
* Solid Oak Flooring to Ground Floor
* Air Source Heat Pump Underfloor Heating
* 80 sqm of Patio & Pathways
* Double Garage
* Superfast Broadband
* Wiring for CCTV & Electric Car Point
We are delighted to present this high specification detached house nestled in a private situation at the end position of this stunning village development. Offering four bedroom accommodation with en suite to principal bedroom and family bathroom and spacious, flexible and impressive downstairs accommodation consisting of a light and airy fully vaulted sitting room with bi-folding doors to rear and Velux windows to front with portrait glazed doors linking to an open plan style reception hall and kitchen/diner fitted to a very high standard with a corner position union of two sets of bifolding doors providing a cleverly designed link from the outside to the in. The kitchen is supported by a utility room, cloakroom and the downstairs is completed by a flexible snug/family room with French doors onto the side garden. The property benefits from underfloor heating to the ground floor and radiators to the first floor via an air source heat pump. Upvc double glazing with anthracite aluminium French and bi-folding doors. To the outside of the property is a driveway area providing off road parking giving access to the double garage and a enclosed garden wrapping around the remaining three sides laid mainly to lawn with a generous paved patio area providing an ideal space for relaxing or entertaining. An internal inspection is highly recommended to fully appreciate the style of accommodation on offer.
Ormesby St Margaret is a beautiful village in the Norfolk Broads. The village centre is close by providing The Farmers gastro pub, numerous takeaways, a well stocked Spar shop and Esso garage. Hirstys Farm Shop and Café is a real treat and a popular destination.
Ormesby has a popular primary school, middle school, doctors, dentist and pharmacy.
Within 5 minutes drive of Dairy Farm Gardens are the glorious Norfolk beaches and The Boat House Country Pub on the banks of Ormesby Broad.
With all this facility - Ormesby St Margaret is a superb place to live…!
Internal Specification:
*Contemporary open plan living
* Three sets of large aluminium bifold doors and aluminium French doors finished in Anthracite grey
* Galleried stairwell landing to first floor with glazed balustrades, oak handrails and base.
* Flush casement designed anthracite windows with stone sills
* Additional Velux units
* Quality kitchen with quartz worktops, German cooking appliances including induction hob within island unit and downdraught extractor
* Utility including quartz worktops and washing appliances
* High Quality floor coverings
* Oak linear prefinished internal doors throughout
Heating, Services and Security:
* Samsung / Jule Air source heating serving all hot water, fully programmable zoned, digital controlled under floor heating to ground floor with first floor radiators
* Security alarm
* External lighting
* Yale single key access system
* Fibreoptic broadband
* IT cat 6 cabling
* Wiring for CCTV
* Wiring for electric car charging point (32 amp supply)
EPC: AWAITING
COUNCIL TAX BAND: AWAITING
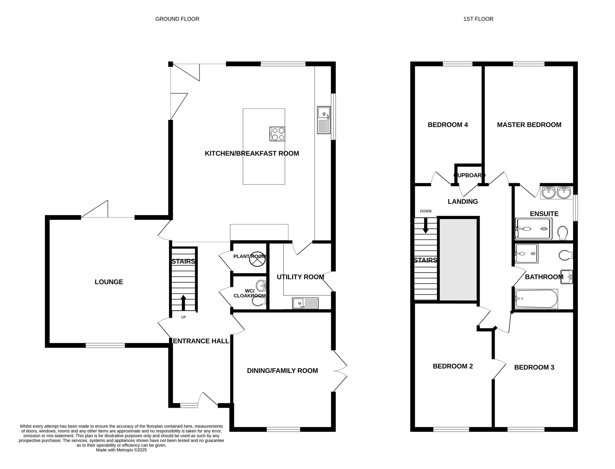
Entrance Hall
Double glazed composite door to front flanked by a full height satin glass double glazed window; inset doormat; alarm panel; stairs to first floor landing with feature glass and oak staircase; built in airing cupboard/plant room with pressurised hot water cylinder and underfloor heating manifold, zoned underfloor heating control, wood flooring and spot light ceiling.
Cloakroom
Fitted with a white suite comprising of a vanity unit with wash hand basin with mixer tap and storage cupboard, low level wc, half tiled to walls, tiled flooring, extractor fan and spot light ceiling.
Lounge
18'3" x 15'4" (5.56m x 4.67m)
UPVC framed double glazed window to front, aluminium double glazed bifolding doors to rear, heritage style Velux windows to front, data point. Contemporary pre-finished glazed internal doors, zoned underfloor heating control and wooden flooring.
Dining / Family Room
14'9" x 12'8" (4.50m x 3.86m)
UPVC double glazed window to front, aluminium double glazed French doors to side, data point, zoned underfloor heating control, wooden flooring and spot light ceiling.
Kitchen
20'11" x 19'1" (6.38m x 5.82m)
Fitted with a range of wall and base units with quartz worktops and upstand over, inset sink drainer with mixer tap, island unit with inset downdraft hob, pan drawers and storage cupboards, integrated fridge, freezer, dishwasher, wine cooler, bin drawer, bank of twin NEFF ovens, data point, zoned underfloor heating control, wooden flooring, spot light ceiling, upvc double glazed windows to side and rear, aluminium double glazed bifolding doors to rear and side aspects with central supporting post truly giving the opportunity to bring the outside in.
Utility Room
9'2" x 7'8" (2.80m x 2.34m)
Fitted with a range of base units with quartz worksurfaces over, integrated washing machine, integrated tumble dryer, inset stainless steel single drainer sink with mixer tap, extractor fan, wooden flooring with inset doormat, spot light ceiling, UPVC double glazed door to side.
Landing
Galleried landing with feature glass and oak staircase; two Velux windows to side; loft access; built in storage cupboard, radiator, zoned heating control and spot light ceiling.
Master Bedroom
14'12" x 11'9" (4.57m x 3.58m)
UPVC double glazed window to rear; two double USB charging points, data point, radiator and spot light ceiling.
En-Suite Bathroom
Fitted with a stylish suite comprising of vanity unit with stylish bespoke floating unit, his and hers sinks with mixer taps and storage drawers below, low level wc; walk in shower cubicle with wall mounted shower unit with hand and soaker attachments, tiled flooring; part tiled to walls, UPVC double glazed window to side, dual powered heated towel rail radiators, wall mounted illuminated electric mirror and spot light ceiling.
Bedroom 2
4.83m max x 3.1m max
UPVC double glazed window to front, data point, 2 double USB charging points and spot light ceiling.
Bedroom 3
4.17m max x 3.12m max
UPVC double glazed window to front; 2 double USB charging points, data points and spot light ceilings.
Bedroom 4
4.57m max x 2.67m max
UPVC double glazed window to rear; 2 double USB charging points, data point and spot light ceiling.
Bathroom
Fitted with a bathroom suite comprising of a low level wc; vanity unit with wash hand basin with mixer tap and storage cupboards, double ended panelled bath with mixer tap, half tiled to walls, corner quadrant shower cubicle with wall mounted shower unit with hand and soaker attachments, sliding doors and tiled wall coverings, tiled flooring, dual powered heated towel rail/radiator, shaver point, Bluetooth mirror, UPVC double glazed window to side; extractor fan and spot light ceiling.
Garden
To the outside front of the property is a block paved driveway area providing off road parking for the property and giving access to the double garage. A porcelain paved pathway gives access to the covered approach to the front door and access to both sides of the property with an outside tap. A wrap round garden covers the rear and sides of the property laid mainly to lawn with established trees, spacious paved patio and pathway area measuring 80 sqm with outside lighting and power points, two outside taps and views into adjoining woodland.
Garage
19'2" x 18'7" (5.84m x 5.66m)
Electric double door to front, UPVC double glazed side personal door, power, light and power supply providing provision for future car charging
IMPORTANT NOTE TO POTENTIAL PURCHASERS:
We endeavour to make our particulars accurate and reliable, however, they do not constitute or form part of an offer or any contract and none is to be relied upon as statements of representation or fact. The services, systems and appliances listed in this specification have not been tested by us and no guarantee as to their operating ability or efficiency is given. All photographs and measurements have been taken as a guide only and are not precise. Floor plans where included are not to scale and accuracy is not guaranteed. If you require clarification or further information on any points, please contact us, especially if you are travelling some distance to view. Fixtures and fittings other than those mentioned are to be agreed with the seller.
Yarmouth Road, Ormesby, Norfolk, NR29
Additional Information
-
Property refQGO250100
Similar properties for sale by Your Move Gorleston
The pin shows the exact address of the property
Energy Efficiency Rating
Very energy efficient - lower running costs
Not energy efficient - higher running costs
Current
N/APotential
N/ACO2 Rating
Very energy efficient - lower running costs
Not energy efficient - higher running costs
