This calculator provides a guide to the amount of residential stamp duty you may pay and does not guarantee this will be the actual cost. This calculation is based on the Stamp Duty Land Tax Rates for residential properties purchased from 23rd September 2022 and second homes from 31st October 2024. For more information on Stamp Duty Land Tax, click here.
4 bedroom Mid Terrace House for sale, Barnwell View, Herrington Burn, Tyne and Wear, DH4
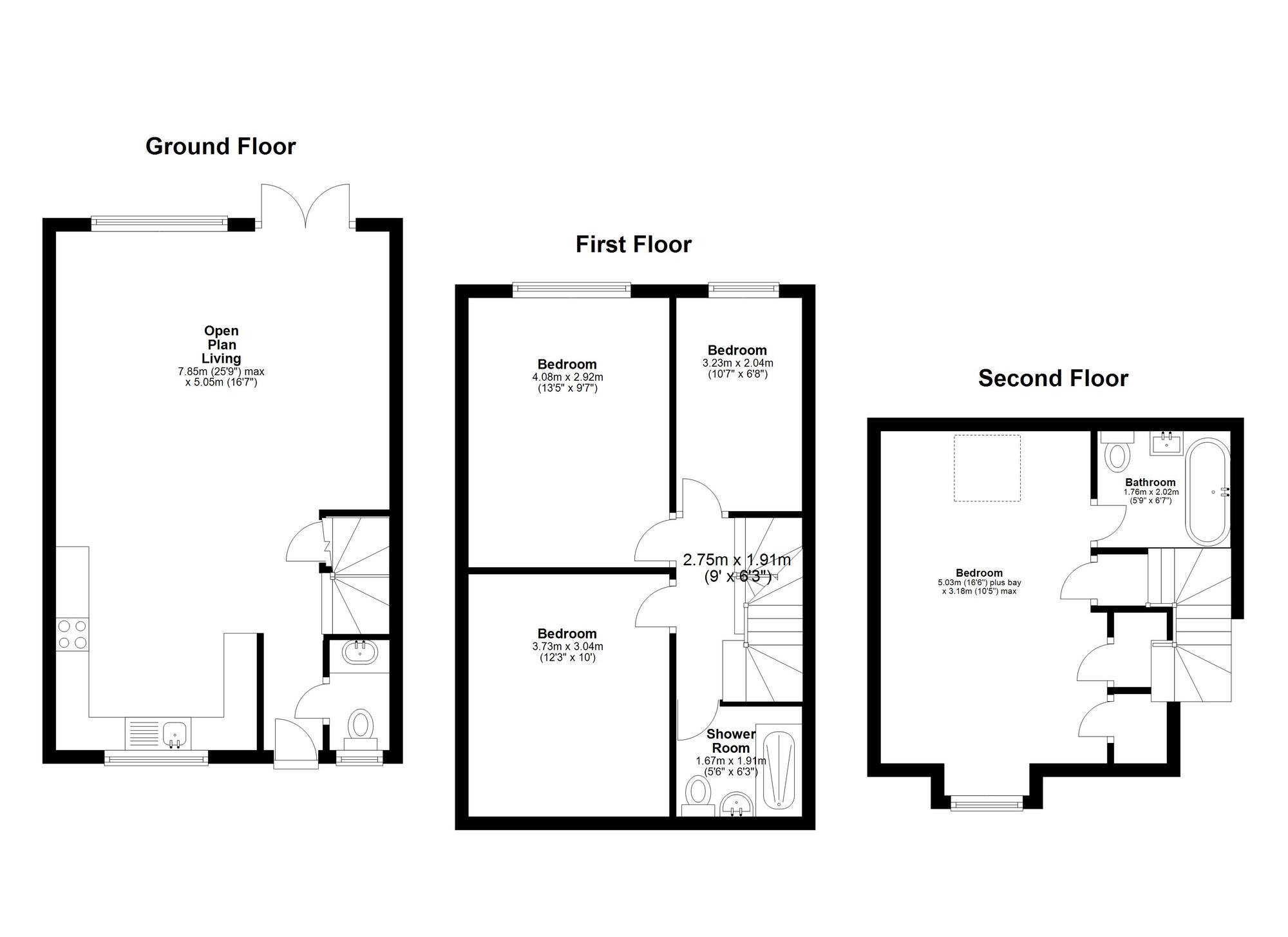
Features and Description
- Four Bed Town House and Garage
- Beautifully Presented Throughout
- Upgraded Room by Room
- Approx. 107SqM - 1,152SqFt
- Council Tax Band C
- Freehold
- Awaiting EPC
This is a fine example of a modern 4 bedroom town house and garage that has been upgraded room by room and is beautifully presented throughout
A spacious Hallway with useful Cloakroom/WC guides you into the Open Plan Living area that includes a modern Kitchen with built in appliances and double doors that lead out into the recently landscaped gardens.
The next level provides three large bedrooms served by a Family Shower Room and the top floor is the Master Suite that includes an En-Suite Bathroom.
A gateway and small front grands takes you to the front door and the rear gardens have just been landscaped to include split level patio and artificial lawn with an gateway to the Garage that is En Bloc
Set in a popular and well served residential area with a wide choice of local shopping, schooling of all grades, health and leisure facilities all close at hand including Herrington Country Park
IMPORTANT NOTE TO POTENTIAL PURCHASERS:
We endeavour to make our particulars accurate and reliable, however, they do not constitute or form part of an offer or any contract and none is to be relied upon as statements of representation or fact. The services, systems and appliances listed in this specification have not been tested by us and no guarantee as to their operating ability or efficiency is given. All photographs and measurements have been taken as a guide only and are not precise. Floor plans where included are not to scale and accuracy is not guaranteed. If you require clarification or further information on any points, please contact us, especially if you are travelling some distance to view. Fixtures and fittings other than those mentioned are to be agreed with the seller.
Barnwell View, Herrington Burn, Tyne and Wear, DH4
Additional Information
-
Property refQHO260016
-
TenureFreehold
-
Council TaxC
-
Local authoritySunderland City Council
Similar properties for sale by Your Move Houghton-le-Spring
The pin shows the exact address of the property
Energy Efficiency Rating
Very energy efficient - lower running costs
Not energy efficient - higher running costs
Current
N/APotential
N/ACO2 Rating
Very energy efficient - lower running costs
Not energy efficient - higher running costs
