This calculator provides a guide to the amount of residential stamp duty you may pay and does not guarantee this will be the actual cost. This calculation is based on the Stamp Duty Land Tax Rates for residential properties purchased from 23rd September 2022 and second homes from 31st October 2024. For more information on Stamp Duty Land Tax, click here.
7 bedroom Mid Terrace House for sale, Clarendon Road, Margate, Kent, CT9
Features and Description
- No Chain
- 6/7 Bedrooms
- 2 Bathrooms
- Off Street Parking
- Triple Glazing
- Original Features
- 50ft Walled Garden
NO CHAIN - 6/7 BEDROOMS - OFF STREET PARKING!
We are delighted to market this no chain, substantial 6/7 bedroom period home which has been lovingly maintained and extended by the present owners to provide a spacious well-proportioned property. The accommodation is arranged over three floors and boasts many attractive and original features including high ceilings, ornate coving and corbels, original doors, exposed floor boards, high skirtings and features fireplaces. It blends its period charm with modern living mixing modern bathrooms, a fitted kitchen, gas central heating and triple glazing with the period features. On the ground floor there is a large lounge and dining room both with fireplaces and the perfect for space for entertaining although the rooms are separated by two large double doors. There is also a bedroom/office, a modern kitchen and breakfast area which is within an extension and there is also a large WC which could also accommodate a shower cubicle. The first floor is home to three bedrooms and a modern bathroom. The second floor there are also a further three bedrooms with a modern family bathroom. Externally, the walled 50ft rear garden is laid mainly to lawn with a variety of plants, shrubs and trees as well as a paved and decked patio with a summerhouse and shed.. Opposite the property to the front is off street parking for 2 vehicles.. NB: There is a flat in the basement which is not part of this sale and has a separate lease of 100 years. The main property owns the freehold of the whole building.
Entrance Lobby
Via an original wooden door, tiled floor, coving, dado rail, further original wood and stain glass door to hall.
Entrance Hall
Over 22ft, tiled floor, ornate corbels and coving, dado rail radiator, thermostat, under stairs cupboard housing tank, smoke alarm, door to lounge and separate door to dining room, alarm panel.
Lounge
Triple glazed bay window to the front, feature fireplace with cast iron stove, exposed wooden floor boards, ornate coving and ceiling rose with light on dimmer, picture rail, two radiators, TV and telephone point, large wooden double doors opening to the dining room.
Dining Room
Triple glazed window to the rear, feature fireplace, exposed floor boards, radiator, picture rail, ornate coving and ceiling rose, door to kitchen and large wooden double doors to lounge.
Bedroom/Office
Via a wood and glass panelled door, two windows to the front, radiator, carpeted, skylight, TV and telephone point, coving, dimmer switch lighting.
Kitchen/Breakfast Room
A range of white matching wall and base units with mottled black worktops, tiled splash backs and half tiled walls, 1.5 bowl composite sink and drainer. Freestanding gas cooker with extractor over, fridge/freezer, washing machine, tumble dryer, dish washer. Skylight, tiled floor leading through to breakfast area with triple glazed windows to the rear with a triple glazed door to the rear garden. Radiator, smoke alarm, TV point.
WC
With triple glazed windows to the side and a triple glazed door to the rear garden, low level WC, pedestal wash basin, tiled floor and walls, radiator, coving, ceiling rose, built in cupboard, boiler.
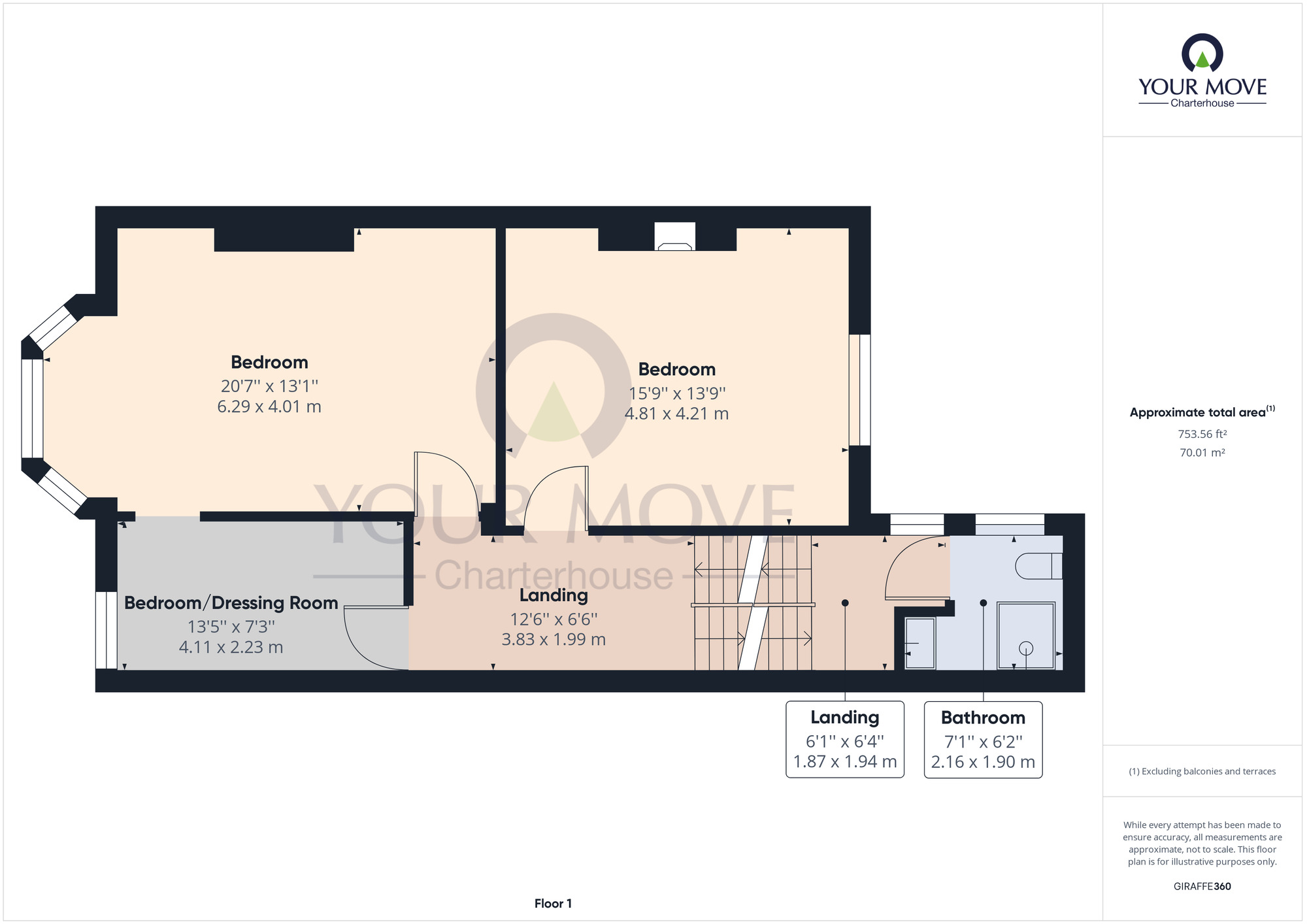
First Floor Landing
Via a balustrade carpeted staircase with dado rail, ornate coving and corbels, triple glazed window to the side, radiator, smoke alarm.
Bathroom
Triple glazed obscured window to the side, tiled floor and walls, shower cubicle with multi jet and rainfall heads, low level WC, wash basin into vanity, ornate coving, radiator.
Bedroom
Triple glazed window to the rear, cast iron and marble fireplace, built in wardrobes, carpeted, coving, picture rail, radiator, TV point.
Bedroom
With a triple glazed bay to the front, built in range of wardrobes and drawer units, carpeted, radiator, picture rail, TV point, opening to dressing room/bedroom.
Bedroom/Dressing Room
Sash window to the front, door to hall and opening to the bedroom, built in wardrobes, radiator, picture rail, carpeted.
Second Floor
Via a balustrade and carpeted staircase.
Bathroom
Triple glazed window to the side, panelled bath with traditional shower attachment and glass screen, low level WC, pedestal wash basin, tiled floor and 3/4 tiled walls, coving, ceiling rose, down lights, radiator, loft hatch.
Bedroom
Triple glazed window to the front with far reaching views, radiator, carpeted, TV Point.
Bedroom
Triple glazed window to the front with far reaching views, radiator, carpeted, TV Point.
Bedroom
Triple glazed window to the rear with far reaching views, radiator, carpeted, TV Point, eaves storage.
Basement Flat
This is not part of the sale and has a 100 year lease with the owner contributing 1/4 of the insurance and building maintenance, paying £80 per month.
Parking
Off street parking for 2 vehicles on land opposite the property.
Front Garden
Mature plants, tiled staircase with outside lights.
Rear Garden
Walled 50ft rear garden, laid mainly to lawn with a variety of plants, shrubs and trees as well as a paved and decked patio plus pond, outside lights and tap, summerhouse and shed.
Location
Ideally located, less than 500 ft to Northdown Roads array of shops and cafes, just over a 10 minute walk to Margate's Old Town and just a 5 minute walk to Dane Park.
Location
Ideally located, less than 500 ft to Northdown Roads array of shops and cafes, just over a 10 minute walk to Margate's Old Town and just a 5 minute walk to Dane Park.
Entrance Lobby
Via an original wooden door, tiled floor, coving, dado rail, further original wood and stain glass door to hall.
Entrance Hall
Over 22ft, tiled floor, ornate corbels and coving, dado rail radiator, thermostat, under stairs cupboard housing tank, smoke alarm, door to lounge and separate door to dining room, alarm panel.
Lounge
Triple glazed bay window to the front, feature fireplace with cast iron stove, exposed wooden floor boards, ornate coving and ceiling rose with light on dimmer, picture rail, two radiators, TV and telephone point, large wooden double doors opening to the dining room.
Dining Room
Triple glazed window to the rear, feature fireplace, exposed floor boards, radiator, picture rail, ornate coving and ceiling rose, door to kitchen and large wooden double doors to lounge.
Bedroom / Office
Via a wood and glass panelled door, two windows to the front, radiator, carpeted, skylight, TV and telephone point, coving, dimmer switch lighting.
Kitchen / Breakfast Room
A range of white matching wall and base units with mottled black worktops, tiled splash backs and half tiled walls, 1.5 bowl composite sink and drainer. Freestanding gas cooker with extractor over, fridge/freezer, washing machine, tumble dryer, dish washer. Skylight, tiled floor leading through to breakfast area with triple glazed windows to the rear with a triple glazed door to the rear garden. Radiator, smoke alarm, TV point.
WC
With triple glazed windows to the side and a triple glazed door to the rear garden, low level WC, pedestal wash basin, tiled floor and walls, radiator, coving, ceiling rose, built in cupboard, boiler.
First Floor Landing
Via a balustrade carpeted staircase with dado rail, ornate coving and corbels, triple glazed window to the side, radiator, smoke alarm.
Bathroom
Triple glazed obscured window to the side, tiled floor and walls, shower cubicle with multi jet and rainfall heads, low level WC, wash basin into vanity, ornate coving, radiator.
Bedroom
Triple glazed window to the rear, cast iron and marble fireplace, built in wardrobes, carpeted, coving, picture rail, radiator, TV point.
Bedroom
With a triple glazed bay to the front, built in range of wardrobes and drawer units, carpeted, radiator, picture rail, TV point, opening to dressing room/bedroom.
Bedroom / Dressing Room
Sash window to the front, door to hall and opening to the bedroom, built in wardrobes, radiator, picture rail, carpeted.
Second Floor
Via a balustrade and carpeted staircase.
Bathroom
Triple glazed window to the side, panelled bath with traditional shower attachment and glass screen, low level WC, pedestal wash basin, tiled floor and 3/4 tiled walls, coving, ceiling rose, down lights, radiator, loft hatch.
Bedroom
Triple glazed window to the front with far reaching views, radiator, carpeted, TV Point.
Bedroom
Triple glazed window to the front with far reaching views, radiator, carpeted, TV Point.
Bedroom
Triple glazed window to the rear with far reaching views, radiator, carpeted, TV Point, eaves storage.
Basement Flat
This is not part of the sale and has a 100 year lease with the owner contributing 1/4 of the insurance and building maintenance, paying £80 per month.
Parking
Off street parking for 2 vehicles on land opposite the property.
Front Garden
Mature plants, tiled staircase with outside lights.
Rear Garden
Walled 50ft rear garden, laid mainly to lawn with a variety of plants, shrubs and trees as well as a paved and decked patio plus pond, outside lights and tap, summerhouse and shed.
IMPORTANT NOTE TO POTENTIAL PURCHASERS:
We endeavour to make our particulars accurate and reliable, however, they do not constitute or form part of an offer or any contract and none is to be relied upon as statements of representation or fact. The services, systems and appliances listed in this specification have not been tested by us and no guarantee as to their operating ability or efficiency is given. All photographs and measurements have been taken as a guide only and are not precise. Floor plans where included are not to scale and accuracy is not guaranteed. If you require clarification or further information on any points, please contact us, especially if you are travelling some distance to view. Fixtures and fittings other than those mentioned are to be agreed with the seller.
Clarendon Road, Margate, Kent, CT9
Additional Information
-
Property refQCL230010
-
EPCD
-
TenureFreehold
-
Council TaxD
-
Local authorityThanet District Council
The pin shows the exact address of the property
Energy Efficiency Rating
Very energy efficient - lower running costs
Not energy efficient - higher running costs
Current
55Potential
80CO2 Rating
Very energy efficient - lower running costs
Not energy efficient - higher running costs
