This calculator provides a guide to the amount of residential stamp duty you may pay and does not guarantee this will be the actual cost. This calculation is based on the Stamp Duty Land Tax Rates for residential properties purchased from 23rd September 2022 and second homes from 31st October 2024. For more information on Stamp Duty Land Tax, click here.
3 bedroom Mid Terrace House for sale, Highland Road, Maidstone, Kent, ME15
Features and Description
- Driveway
- Low maintenance garden
- Close to Mote Park
- Three bedroom
- Three piece bathroom
- 18ft Sitting/Dining room
- Popular location
- Chain free
Welcome to Highland Road, located to the south of Mote Park, this fantastic property is ideal for all!
This great sized terrace property boasts off street drive way leading to a brilliant bright porch/entrance hall, leading to a modern fitted cottage style kitchen, with ample food preparation and storage space over looking the good sized garden.
The hub of the home is the well proportioned lounge and dining room, creating a bright and airy open plan living arrangement, big enough for those family movie nights and hosting those important dinner parties with further views of the garden.
French doors lead to the low maintenance garden with good sized patio ideal for al fresco dining and family BBQ'S. Well established borders introduce pops of colour complimenting the artificial lawn.
Upstairs you will find a three piece neutrally tiled bathroom.
The master bedroom faces the front of the property with plenty of space to unwind, the further two bedrooms continue the neutral modern décor.
Don't miss the opportunity to make this stunning property your next home. With its spacious layout, modern amenities, and desirable location, this home offers the perfect blend of comfort and convenience. Whether you're looking to entertain or relax, it truly has something for everyone. Schedule a viewing today to experience it in person – your dream home is waiting.
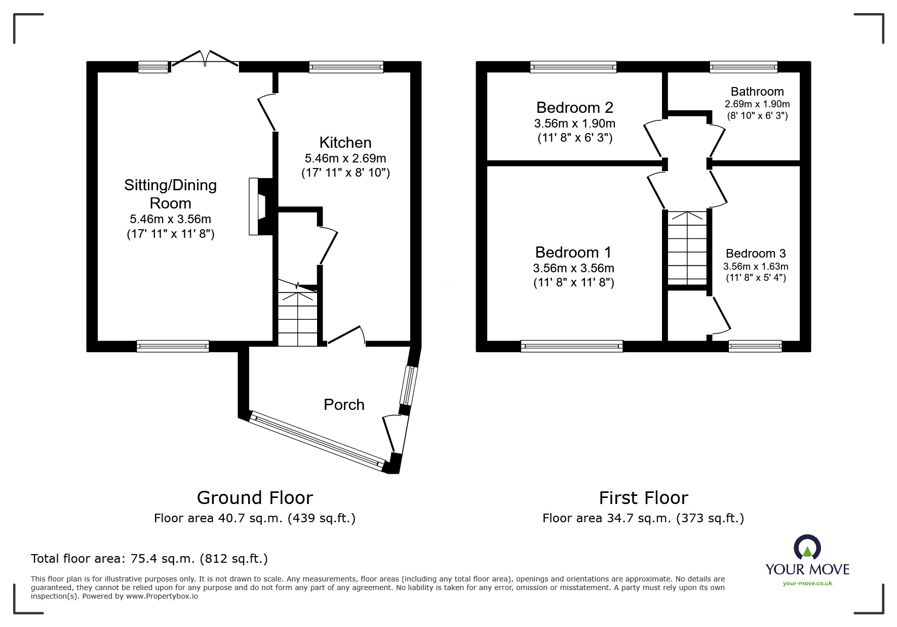
Kitchen
17'11" x 8'10" (5.46m x 2.70m)
Sitting / Dining Room
17'11" x 11'8" (5.46m x 3.56m)
Bathroom
8'10" x 6'3" (2.70m x 1.90m)
Bedroom 1
11'8" x 11'8" (3.56m x 3.56m)
Bedroom 2
11'8" x 6'3" (3.56m x 1.90m)
Bedroom 3
11'8" x 5'4" (3.56m x 1.63m)
IMPORTANT NOTE TO POTENTIAL PURCHASERS:
We endeavour to make our particulars accurate and reliable, however, they do not constitute or form part of an offer or any contract and none is to be relied upon as statements of representation or fact. The services, systems and appliances listed in this specification have not been tested by us and no guarantee as to their operating ability or efficiency is given. All photographs and measurements have been taken as a guide only and are not precise. Floor plans where included are not to scale and accuracy is not guaranteed. If you require clarification or further information on any points, please contact us, especially if you are travelling some distance to view. Fixtures and fittings other than those mentioned are to be agreed with the seller.
Highland Road, Maidstone, Kent, ME15
Additional Information
-
Property refMAI251037
-
EPCD
-
TenureFreehold
-
Council TaxC
-
Local authorityMaidstone Borough Council
Similar properties for sale by Your Move Maidstone
The pin shows the exact address of the property
Energy Efficiency Rating
Very energy efficient - lower running costs
Not energy efficient - higher running costs
Current
59Potential
82CO2 Rating
Very energy efficient - lower running costs
Not energy efficient - higher running costs
