This calculator provides a guide to the amount of residential stamp duty you may pay and does not guarantee this will be the actual cost. This calculation is based on the Stamp Duty Land Tax Rates for residential properties purchased from 23rd September 2022 and second homes from 31st October 2024. For more information on Stamp Duty Land Tax, click here.
5 bedroom Mid Terrace House for sale, Victoria Avenue, Bishop Auckland, Durham, DL14
Features and Description
- EPC Grade: E
- Council Tax Band: C
- Stunning Home
- Two Large Reception Room
- Beautifully Fitted Kitchen
- Perfect Home for a Family
- Town Centre Location
- Original Features
- Fully Renovated
* LARGE 3 STOREY VICTORIAN TOWNHOUSE * GRADE II LISTED * TASTEFULLY MODERNISED * 5 BEDROOMS * SELF CONTAINED AREA SUITABLE FOR EXTENDED FAMILY * STUNNING KITCHEN AND BATHROOMS. * 'Buggleugh House' is a large family home extends to over 2,600 square feet and is centrally located near the town centre close to all local amenities. It has been comprehensively updated over recent years retaining many of its original features. Deceptively large.
Awaiting EPC.
Council Tax Band: C
Entrance Hallway
Step inside the entrance porch adorned with original features including feature tiled flooring. Leading to the main entrance hallway with a staircase to the first floor. Under the stairs a door leads to the cellar below.
Lounge
Beautifully finished with a stunning bay window to the front of the property with fitted shutter blinds and curtains. Original feature fireplace and carpeted flooring.
Dining Room
The formal dining room offers a great place for family meals, with a log burner with surround and wood effect flooring. A large double glazed window overlooks the rear yard.
Kitchen / Breakfasting Room
At the heart of the home is this stylish kitchen fitted with base and wall units for storage. Integrated appliances including a dishwasher, range cooker and sink with drainer. There is an American style fridge/freezer. Patio doors with fitted blinds leading to the outside space and a double glazed window. Breakfasting bar with stools.
Utility Area
Open to the kitchen the utility area is a perfect size. Fitted with further base and wall units for handy storage and a sink with drainer. Door leading to the rear garden
WC / Clockroom
Low level flush toilet and hand wash basin with vanity unit. Double glazed window and chrome towel radiator. Part tiled walls.
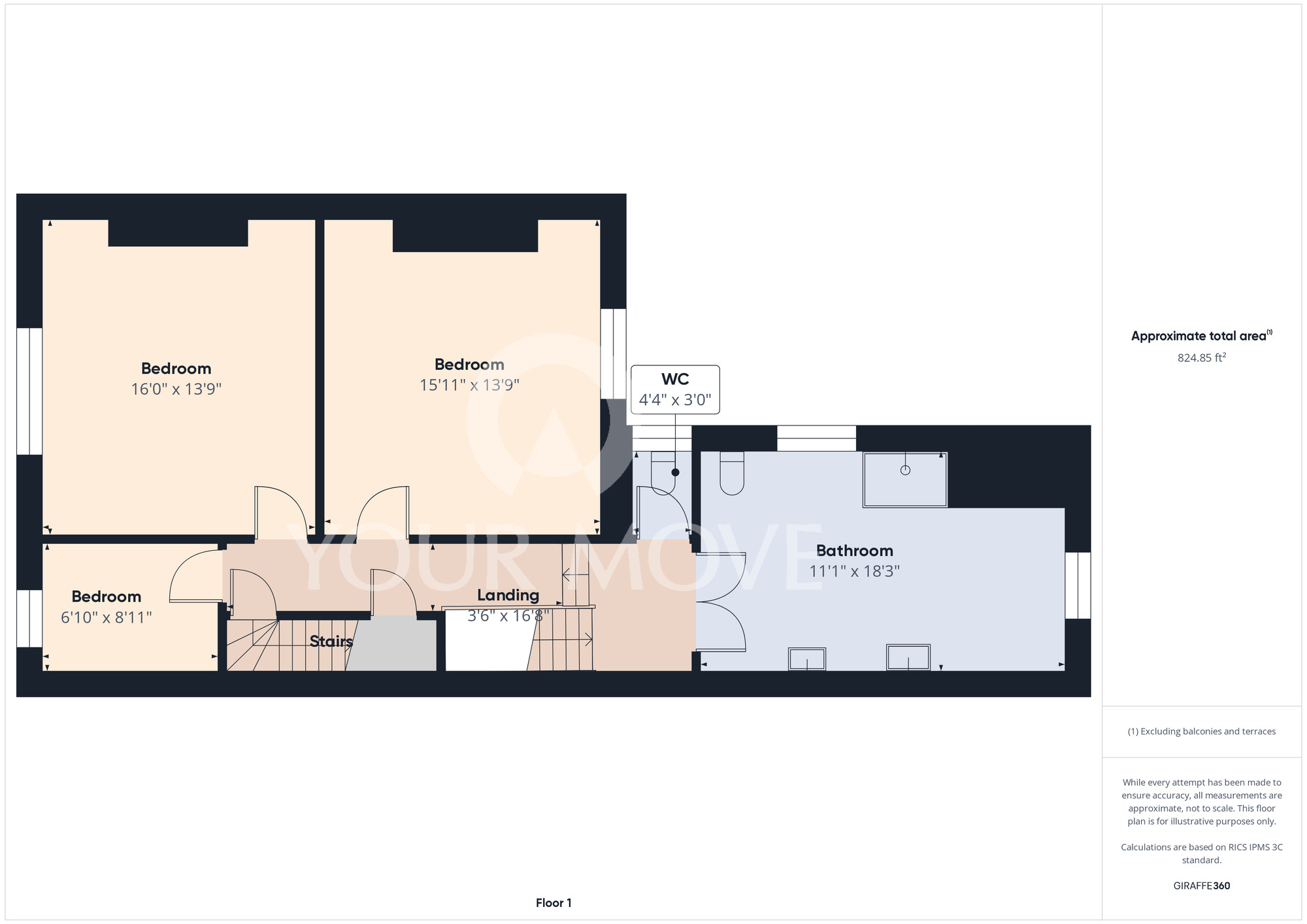
Landing
The landing really has the WOW factor leading with double doors to the bathroom and access to the bedrooms.
Bedroom 1
Carpeted flooring, double glazed window to the front with fitted blinds and feature fire. Fitted wardrobes with sliding doors provide convenient storage.
Bedroom 2
Carpeted flooring, double glazed window to the rear aspect with fitted blinds and curtains. Wardrobes for storage.
Bedroom 3
Carpeted flooring, double glazed window with fitted blinds.
Bathroom
Viewers will be blow away buy this modern and stylish fitted bathroom suite. Fully tiled walls and flooring. Walk in double shower, and wall hung WC. His and hers sinks with vanity unit for storage and wall mounted mirrored units. Free standing bath in front of the double glazed frosted window and two chrome radiators.
Bedroom 4
Set on the 2nd floor leading from another landing is the large 4th bedroom with carpeted flooring, feature fireplace and Velux stylish window. Leading to the en-suite bathroom.
En-Suite
Low level flush toilet, hand wash basin with vanity unit and corner shower. Fully tiled walls and chrome radiator.
Seond Level Living Area / Bedroom 5
Set on the 2nd floor along with bedroom four is a lounge area with carpeted flooring and two double glazed windows providing ample natural light. There is a kitchenette offering some base units for storage and plumbing.
External
The front of the property has a pleasant courtyard with brick wall and metal fencing with access gate to the front door. To the rear is a generous outside space with a decking area leading from the kitchen patio doors with a fence surround and stairs leading to the lower part of the yard. Large area perfect for relaxing in the sun. Double roller gates leading to the back lane. Featured with the property are two remote controlled electric Awnings.
Cellar
The cellar is accessed via stairs from the ground floor level. Ideal for extra storage/workshops/games room. Fitted with electrics and lighting.
Additional Information
HMRC is a supervisory body for money laundering regulations, of which all estate agents need to be registered. As part of this, there are multiple requirements that agents must rigorously and consistently meet to ensure they stay compliant with the regulations and protect their clients. To do this, we use an identity verification service, approved by the Government as part of the Digital Identity and Attributes Trust Framework (DIATF). This method and the process we follow to ensure compliance for your transaction come with significant time, financial and legal implications hence a portion of this is passed on to our clients. We elected for this verification process due to the speed, certainty, and accuracy it delivers. This helps us to protect all our client's interests by using the most advanced verification process to help prevent the impacts of money laundering alongside our internal manual policies and procedures while staying compliant with HMRC. The administrative charge for this process is £40 plus VAT for a sole purchaser, £65 plus VAT for two purchasers and £75 plus VAT three or more purchasers.
Agent Note
In accordance with the Estate Agents Act 1979, we must inform you that a member of Your Move staff has an interest in this property.
IMPORTANT NOTE TO POTENTIAL PURCHASERS:
We endeavour to make our particulars accurate and reliable, however, they do not constitute or form part of an offer or any contract and none is to be relied upon as statements of representation or fact. The services, systems and appliances listed in this specification have not been tested by us and no guarantee as to their operating ability or efficiency is given. All photographs and measurements have been taken as a guide only and are not precise. Floor plans where included are not to scale and accuracy is not guaranteed. If you require clarification or further information on any points, please contact us, especially if you are travelling some distance to view. Fixtures and fittings other than those mentioned are to be agreed with the seller.
Victoria Avenue, Bishop Auckland, Durham, DL14
Additional Information
-
Property refDAR250291
-
EPCE
-
TenureFreehold
-
Council TaxC
-
Local authorityDurham Council
Similar properties for sale by Your Move Darlington
The pin shows the exact address of the property
Energy Efficiency Rating
Very energy efficient - lower running costs
Not energy efficient - higher running costs
Current
52Potential
71CO2 Rating
Very energy efficient - lower running costs
Not energy efficient - higher running costs
