This calculator provides a guide to the amount of residential stamp duty you may pay and does not guarantee this will be the actual cost. This calculation is based on the Stamp Duty Land Tax Rates for residential properties purchased from 23rd September 2022 and second homes from 31st October 2024. For more information on Stamp Duty Land Tax, click here.
3 bedroom Semi Detached House for sale, Cemetery Road, Hemingfield, South Yorkshire, S73
Features and Description
- Unique Property
- Stunning Open Country Views to Rear
- Rear Sun Deck
- Significantly Extended
- Detached Triple Size Garage/Workshop
- 3 Reception Rooms
- Private Rear Gardens
- Attic Room
Your Move are delighted to present this unique, semi-detached property, offering spacious accommodation over four levels and occupying an elevated position with commanding open countryside views across towards Elsecar and Wentworth.
Offering an idyllic lifestyle, this thoughtfully extended property has been designed to capture this stunning view from multiple living spaces. including a sundeck leading off the master bedroom and a detached, triple size garage and workshop.
In brief the the property comprises: a breakfast kitchen, three reception rooms, three, generous size bedrooms and a well appointed bathroom. A long drive leads to the garage and enclosed rear garden offering a private and secure outdoor space.
The property is fitted with double glazed windows and a gas central heating system and benefits from a new boiler and upgraded electrics within the last twelve months.
We recommend an early personal inspection to fully appreciate this super home.
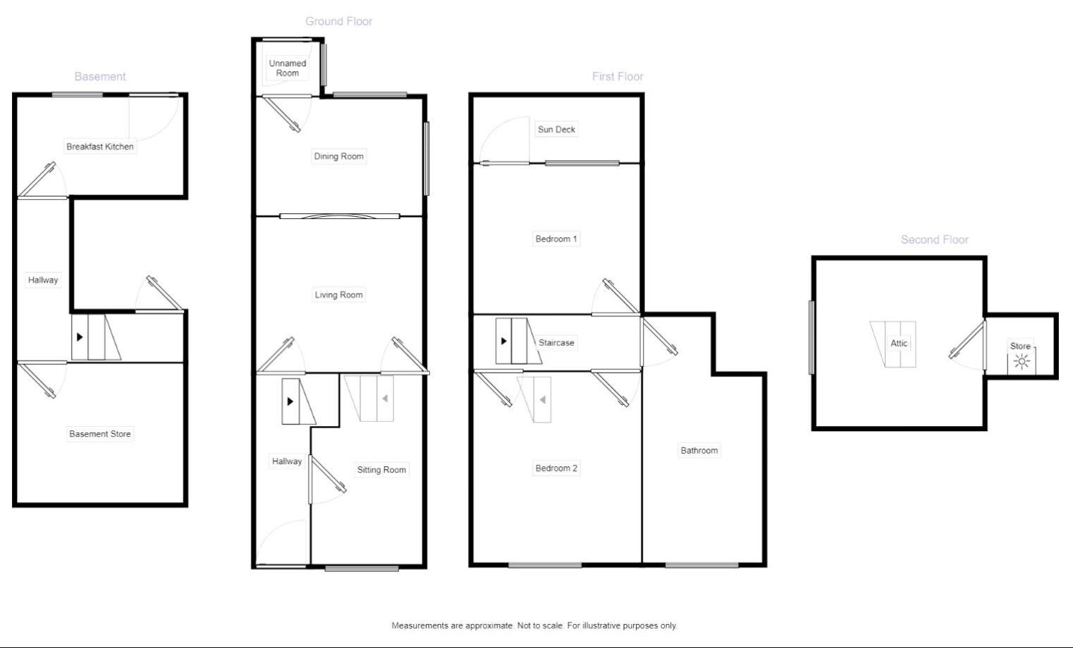
Overview
Your Move are delighted to present this unique, semi-detached property, offering spacious accommodation over four levels and occupying an elevated position with commanding open countryside views across towards Elsecar and Wentworth.Offering an idyllic lifestyle, this thoughtfully extended property has been designed to capture this stunning view from multiple living spaces. including a sundeck leading off the master bedroom and a detached, triple size garage and workshop.In brief the the property comprises: a breakfast kitchen, three reception rooms, three, generous size bedrooms and a well appointed bathroom. A long drive leads to the garage and enclosed rear garden offering a private and secure outdoor space.The property is fitted with double glazed windows and a gas central heating system and benefits from a new boiler and upgraded electrics within the last twelve months.We recommend an early personal inspection to fully appreciate this super home.
Breakfast Kitchen
4.85 x 3.31
An external entrance door leads off the rear garden into the kitchen which is fitted with a range of wall and base units with ample worktop space. There is a sink set beneath a rear facing window and hallway leads to the store and stairs rise to the first floor.
Storage Room
4.73 x 3.60
A useful basement storage room.
Living Room
4.89 x 4.02
A well proportioned living room with built in mahogany shelving and decorative oak ceiling beams, sliding doors lead into the sitting room, making for a spacious living experience. Stairs lead off descending to the kitchen.
Sitting Room
3.31 x 4.86
Forming part of an open plan living/sitting area with rear and side facing windows again taking in the open views to the rear.
Rear Porch
External Stairs lead to this rear facing porch which has windows and further doorway into the dining room.
Hallway
A front facing entrance door opens into the hallway, with stairs rising to the next level.
Sitting Room
3.65 x 3.72
Leading off the hallway, this good size sitting room has a front facing window.
Bedroom 1
4.02 x 4.88
An excellent size master bedroom with a rear facing window and door opening onto balcony and sundeck taking in panoramic open countryside views.
Bedroom 2
3.75 x 4.84
Leading off the first floor landing this good size double bedroom has a front facing window and staircase leads to the attic.
Bathroom
A very spacious family bathroom with a stylish white suite and a separate shower cubicle, and with tiled walls and flooring, a front facing window, and a heated towel radiator.
Attic Room
4.34 x 5.68
A staircase leads off the first floor second bedroom and rises to the attic, which has a side facing window. A door leads to another smaller space which houses a gas fired boiler and has a roof light.
Detached Triple Garage
7.67 x 6.95
A driveway leads to this superb size garage and workshop space, which has one side hung, garage door, light, power and a side facing window.
Gardens
To the front of the property is a small buffer garden and to the rear, an enclosed, private garden comprising: an artificial lawn area which leads to a patio area including built-in storage and external wc.
IMPORTANT NOTE TO POTENTIAL PURCHASERS:
We endeavour to make our particulars accurate and reliable, however, they do not constitute or form part of an offer or any contract and none is to be relied upon as statements of representation or fact. The services, systems and appliances listed in this specification have not been tested by us and no guarantee as to their operating ability or efficiency is given. All photographs and measurements have been taken as a guide only and are not precise. Floor plans where included are not to scale and accuracy is not guaranteed. If you require clarification or further information on any points, please contact us, especially if you are travelling some distance to view. Fixtures and fittings other than those mentioned are to be agreed with the seller.
Cemetery Road, Hemingfield, South Yorkshire, S73
Additional Information
-
Property refQWB250262
-
EPCD
-
TenureFreehold
The pin shows the exact address of the property
Energy Efficiency Rating
Very energy efficient - lower running costs
Not energy efficient - higher running costs
Current
55Potential
77CO2 Rating
Very energy efficient - lower running costs
Not energy efficient - higher running costs
