This calculator provides a guide to the amount of residential stamp duty you may pay and does not guarantee this will be the actual cost. This calculation is based on the Stamp Duty Land Tax Rates for residential properties purchased from 23rd September 2022 and second homes from 31st October 2024. For more information on Stamp Duty Land Tax, click here.
3 bedroom Semi Detached House for sale, Yew Tree Close, Longfield, Kent, DA3
Features and Description
- 3 Good Size Bedrooms
- New Barn Location
- Fitted Wardrobes
- Utility Room
- 2 Bathrooms
- Garage
- Good Size Garden
- Solar Panels
- Electric Car Charging Port
This three-bedroom semi-detached house is **for sale** in a quiet cul-de-sac in Longfield, offering a practical layout and convenient setting for everyday living.
Inside, the property provides one reception room, a kitchen and the added benefit of a separate utility room, ideal for laundry and extra storage. There are two bathrooms, helping busy households manage the morning rush, and fitted wardrobes offer useful built-in storage in the bedrooms. A garage gives further flexibility for parking or additional storage. Outside, a good-sized garden provides space for outdoor seating, play, or planting.
Longfield is known for its village-style high street with everyday amenities including supermarkets, local shops, cafés and takeaways. Nearby, residents can enjoy green spaces and countryside walks in the surrounding North Kent area, with several parks and footpaths a short drive away.
For commuters, Longfield railway station is within easy reach, offering direct services to London Victoria typically in around 35–40 minutes, and to Bromley South in about 20–25 minutes, making this a suitable base for those travelling into the city or across Kent. Road links via the A2 and M25 are also accessible for wider travel.
Families will find a selection of primary and secondary schools in Longfield and neighbouring villages, along with leisure facilities and community clubs in the area.
Overall, this three-bedroom semi-detached home for sale combines a cul-de-sac setting, useful internal spaces including a utility room and garage, and access to Longfield’s transport links and local amenities.
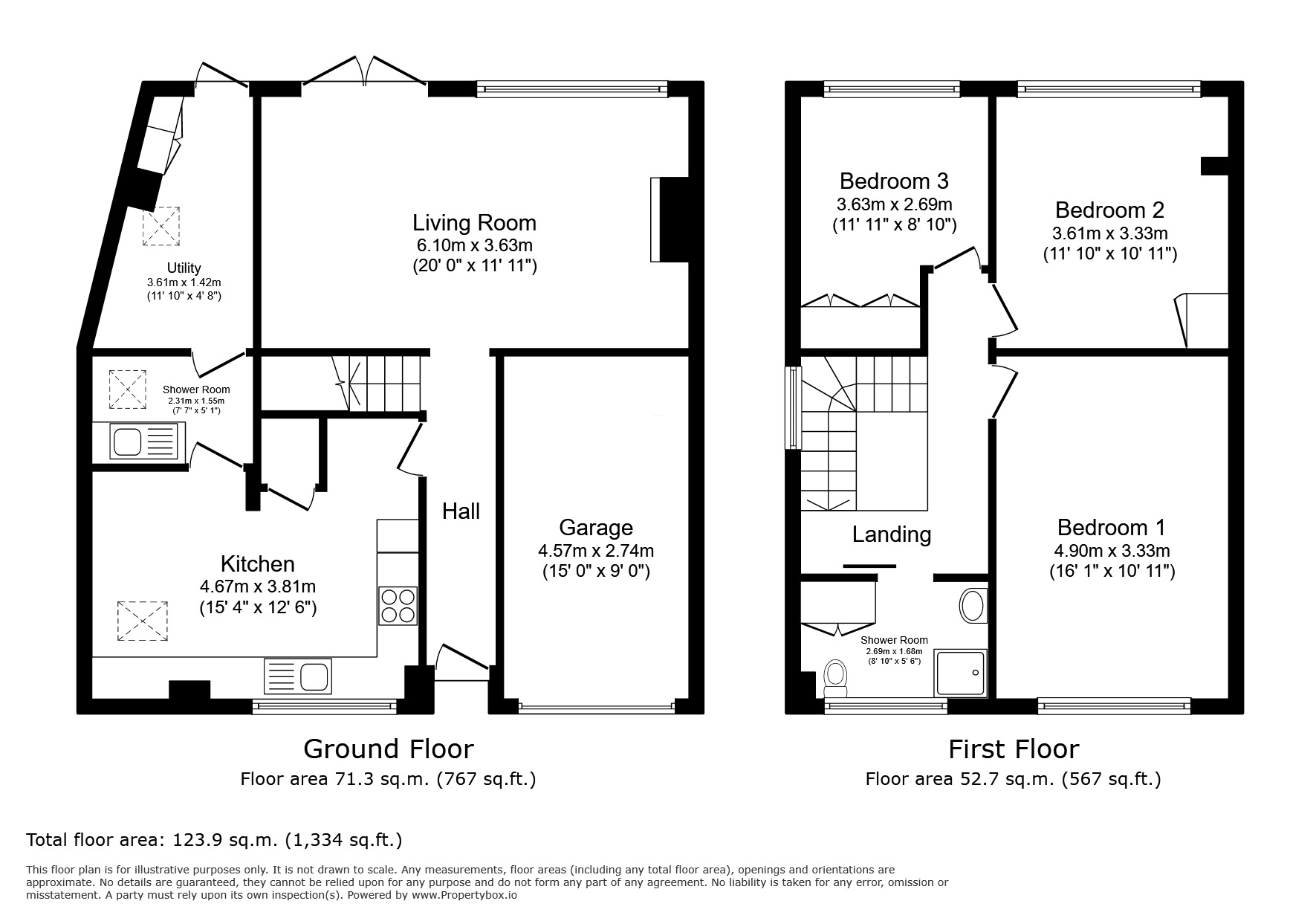
Kitchen
15'4" x 12'6" (4.67m x 3.81m)
Utility Room with Shower and WC
8'0" x 5'5" (2.44m x 1.65m)
Study
11'10" x 4'8" (3.61m x 1.42m)
Lounge / Diner
20'0" x 11'11" (6.10m x 3.63m)
Garage
14'12" x 8'12" (4.57m x 2.74m)
Bedroom 1
16'1" x 10'11" (4.90m x 3.33m)
Bedroom 2
11'10" x 10'11" (3.61m x 3.33m)
Bedroom 3
11'11" x 8'10" (3.63m x 2.69m)
Shower Room
8'10" x 5'5" (2.69m x 1.65m)
IMPORTANT NOTE TO POTENTIAL PURCHASERS:
We endeavour to make our particulars accurate and reliable, however, they do not constitute or form part of an offer or any contract and none is to be relied upon as statements of representation or fact. The services, systems and appliances listed in this specification have not been tested by us and no guarantee as to their operating ability or efficiency is given. All photographs and measurements have been taken as a guide only and are not precise. Floor plans where included are not to scale and accuracy is not guaranteed. If you require clarification or further information on any points, please contact us, especially if you are travelling some distance to view. Fixtures and fittings other than those mentioned are to be agreed with the seller.
Yew Tree Close, Longfield, Kent, DA3
Additional Information
-
Property refLON230155
-
EPCC
-
TenureFreehold
-
Council TaxE
-
Local authorityDartford Borough Council
Similar properties for sale by Your Move Longfield
The pin shows the exact address of the property
Energy Efficiency Rating
Very energy efficient - lower running costs
Not energy efficient - higher running costs
Current
77Potential
82CO2 Rating
Very energy efficient - lower running costs
Not energy efficient - higher running costs
