This calculator provides a guide to the amount of residential stamp duty you may pay and does not guarantee this will be the actual cost. This calculation is based on the Stamp Duty Land Tax Rates for residential properties purchased from 23rd September 2022 and second homes from 31st October 2024. For more information on Stamp Duty Land Tax, click here.
3 bedroom Semi Detached House for sale, Gregory Street, Ilkeston, Derbyshire, DE7
Features and Description
- NEW HOME
- TOWN CENTRE LOCATION
- . OPTION FOR PARKING TO REAR
- Downstairs WC
- L Shaped Lounge with patio doors to garden
- Dining Kitchen with walk in bay window
- Block paved patio and rear garden
- Erewash Borough Council B
- EPC Rating B
Built in keeping with the Street this a Modern example of this popular bay fronted Ilkeston town centre home.
Just a stones through from all local amenity's, this property has loads to offer on your door step.
Internally the property comprises :- Entrance hall, Downstairs WC, Fitted dining Kitchen, L Shaped Lounge to rear with patio doors. To the first floor there are three well proportioned bedrooms and a Fitted white Bathroom suite with tiled splash backs and plumbed shower.
To the outside there is a wall block paved front forecourt and to the rear an enclosed fenced lawn with block paved patio.
Location
Situated in the heart Ilkeston market town, there is a large car park to the side giving access to the town centre shops on bath street. On street permit parking to the front. The property is only 5 minutes walk to Victoria Park leisure centre, swimming baths and bus shops to both Nottingham and Derby. Ilkeston train station is also only 15 minutes walk across town.
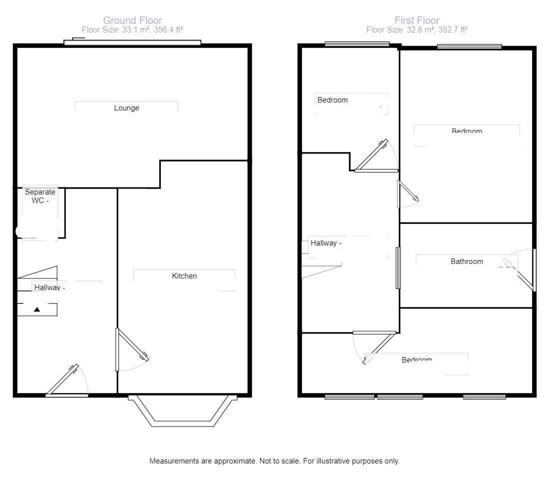
Entrance Hall
6'7" x 13'3" (2.00m x 4.04m)
Double glazed door to front elevation, radiator, built in meter cupboard and stairs raising to first floor.
Separate WC
5'3" x 2'9" (1.60m x 0.83m)
Fitted with a close coupled WC, pedestal wash hand basin and radiator.
L Shaped Lounge
15'7" x 9'9" (4.76m x 2.96m)
Double glazed window to rear elevation and patio doors leading out to rear garden.
Dining Kitchen
8'8" x 16'9" (2.65m x 5.11m)
Fitted with a range of contemporary wall and base units incorporating a wall mounted boiler . There is ample space for fridge freezer, plumbing for automatic washing machine. Built in electric hob, gas cooker and tiled splash backs.
Landing
10'0" x 6'5" (3.05m x 1.95m)
Having open plan cupboard alcove space and doors leading to :-
Bathroom
5'7" x 8'10" (1.71m x 2.69m)
Fitted with a four piece suite including a walk in plumbed shower, pedestal wash hand basin, closed coupled WC . Bath with tiled splash backs and double glazed window to side elevation.
Bedroom
15'7" x 6'1" (4.76m x 1.86m)
Three double glazed windows to front elevation and radiator.
Bedroom
9'1" x 8'3" (2.78m x 2.51m)
Double glazed window to rear elevation and radiator.
Bedroom
7'1" x 6'9" (2.15m x 2.07m)
Double glazed window to rear elevation and radiator.
Rear Garden
Having a block paved patio with fenced boundary incorporating a raised lawn. There is also an option with this property to create rear parking off Club row car park as the property has right of access over the toe path.
Tenure
Freehold
Erewash Borough Council
Band B
EPC rating
B
IMPORTANT NOTE TO POTENTIAL PURCHASERS:
We endeavour to make our particulars accurate and reliable, however, they do not constitute or form part of an offer or any contract and none is to be relied upon as statements of representation or fact. The services, systems and appliances listed in this specification have not been tested by us and no guarantee as to their operating ability or efficiency is given. All photographs and measurements have been taken as a guide only and are not precise. Floor plans where included are not to scale and accuracy is not guaranteed. If you require clarification or further information on any points, please contact us, especially if you are travelling some distance to view. Fixtures and fittings other than those mentioned are to be agreed with the seller.
Gregory Street, Ilkeston, Derbyshire, DE7
Additional Information
-
Property refILK230317
-
EPCB
-
TenureFreehold
-
Council TaxB
-
Local authorityErewash Borough Council
Fitted with a four piece suite including a walk in plumbed shower, pedestal wash hand basin, closed coupled WC . Bath with tiled splash backs and double glazed window to side elevation.
Three double glazed windows to front elevation and radiator.
The pin shows the exact address of the property
Energy Efficiency Rating
Very energy efficient - lower running costs
Not energy efficient - higher running costs
Current
81Potential
94CO2 Rating
Very energy efficient - lower running costs
Not energy efficient - higher running costs
