This calculator provides a guide to the amount of residential stamp duty you may pay and does not guarantee this will be the actual cost. This calculation is based on the Stamp Duty Land Tax Rates for residential properties purchased from 23rd September 2022 and second homes from 31st October 2024. For more information on Land and Buildings Transaction Tax, click here.
3 bedroom Semi Detached House for sale, Richmond Terrace, Portgordon, Moray, AB56
Features and Description
- EPC Band D
- Council Tax Band B
- Three spacious double bedrooms
- Two bright reception rooms
- Large fully enclosed rear garden
- Modern kitchen with built-in pantries
- Downstairs bedroom with walk-in closet
- Separate bath and corner shower
- Abundant natural light throughout
- Direct access to garden from lounge
- Close to coastal walking and cycling
- Double glazing and gas central heating
We are delighted to present this generously proportioned three-bedroom semi-detached house, neutrally decorated and designed for comfortable family living. Situated within easy reach of picturesque walking and cycling routes, this home provides a wonderful blend of tranquil surroundings and practical amenities.
The ground floor features two well-appointed reception rooms. The front reception boasts large windows, a welcoming fireplace and an open-plan connection to the dining area, creating an inviting space ideal for relaxing or entertaining. The rear reception overlooks the sizeable, fully enclosed rear garden with direct access through an external doors. Abundant natural light enhances the sense of space and connection to the outdoors, while the garden itself offers a private lawn, a wooden shed, and secure side gated access - perfect for family activities or gardening enthusiasts.
The modern kitchen is equipped with natural light and a built-in cupboard, providing ample storage and workspace. A rear porch leads directly from the kitchen offering further convenience.
All three bedrooms are doubles and are fitted with built-in wardrobes. The principal downstairs bedroom benefits from a walk-in cupboard, catering to both comfort and practicality. The family bathroom is fully tiled and features a separate bath and a corner shower. There is also the added convenience of an upstairs WC and landing storage space.
Further advantages include double glazing, gas central heating, on-street parking and proximity to scenic walking and cycling routes. This is a superb opportunity to secure a beautifully presented home in an enviable location.
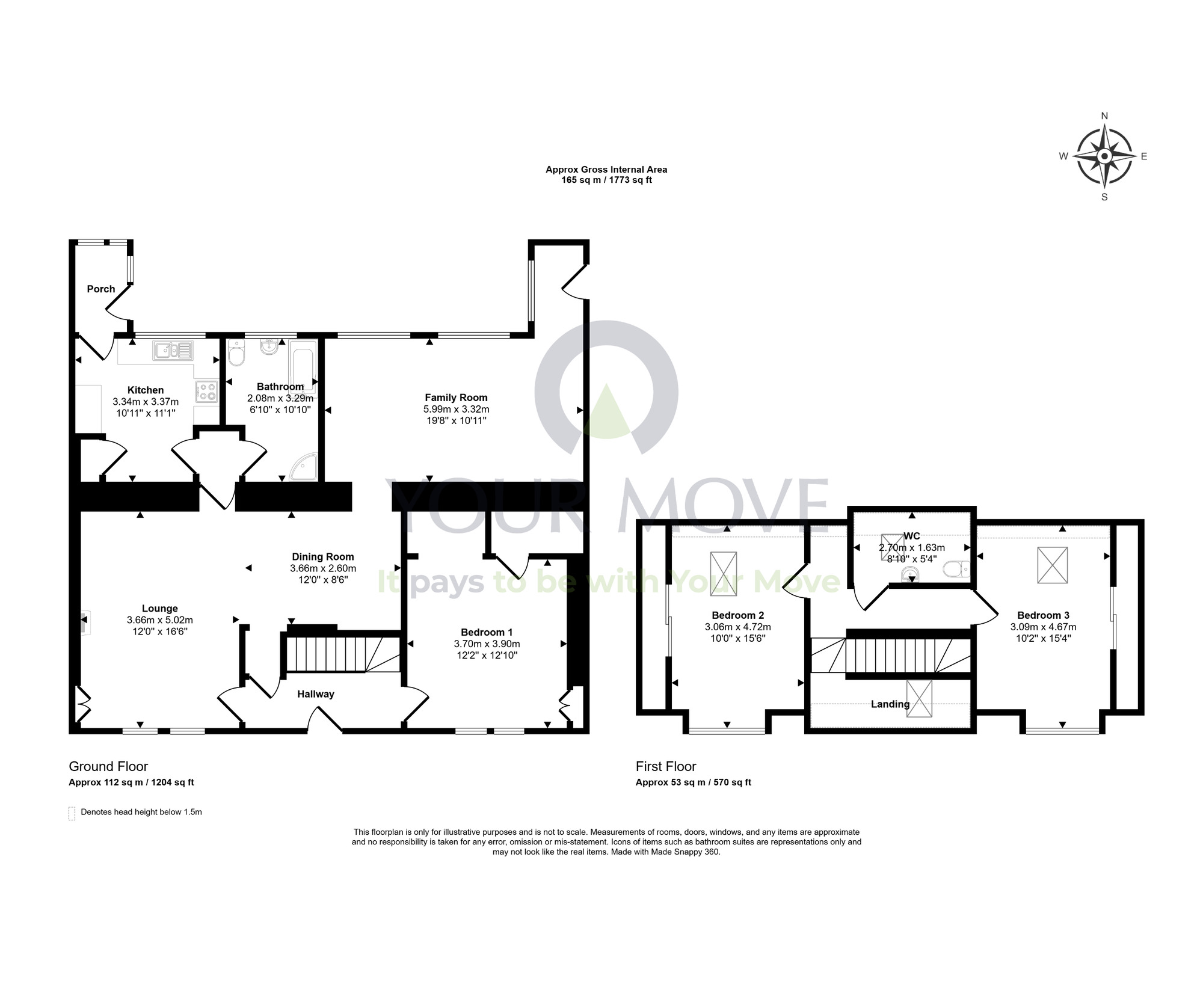
Hallway
The front entrance to this home leads into a welcoming hallway with a traditional staircase leading to the first floor. From the hallway there is door access into the lounge, dining room and a downstairs bedroom.
Lounge
12'0" x 16'6" (3.66m x 5.02m)
Situated to the front of the house is the main reception room boasting large windows, a feature fireplace with wood burner and plenty of furnishing space.
Dining Room
12'0" x 8'6" (3.66m x 2.60m)
The open-plan connection to the lounge creates an inviting space ideal for entertaining guests or family meals.
Kitchen
10'11" x 11'1" (3.34m x 3.37m)
There’s a modern kitchen offering plenty of worktop space and cupboard storage, a built-in cupboard and access to the rear porch. There is allocated under counter space for freestanding appliances.
Porch
Accessible from the kitchen is the rear porch which benefits from storage space, power sockets and door access out to the rear garden.
Bathroom
6'10" x 10'10" (2.08m x 3.29m)
The contemporary family bathroom is conveniently positioned on the ground floor of the property. The bathroom is fully tiled throughout and consists for a four-piece white suite that includes a WC, wash hand basin, bath and separate corner shower enclosure.
Family Room
19'8" x 10'11" (5.99m x 3.32m)
There’s a generous sized second reception room located to the rear of the home. This room boasts plenty of space whilst having window views over the rear garden and external door access.
Bedroom 1
12'2" x 12'10" (3.70m x 3.90m)
Positioned to the ground floor is the largest of the bedrooms. This room has a walk-in storage cupboard and built-in storage space which could easily be adapted as an additional enclosed wardrobe.
Landing
To the first floor, the landing has access to two bedrooms, a WC and storage space.
Bedroom 2
10'0" x 15'6" (3.06m x 4.72m)
A good size double bedroom benefitting from a bay window and Velux window, allowing for ample natural light. Additionally, this room has a built-in wardrobe with mirror sliding doors.
Bedroom 3
10'2" x 15'4" (3.09m x 4.67m)
The third bedroom is another good size double room. This room also benefits from a bay and Velux window as well as a built-in wardrobe.
Wc
8'10" x 5'4" (2.70m x 1.63m)
Conveniently positioned is an upstairs WC with wash hand basin which is partially tiled allowing for an easy upkeep.
External
A fully enclosed rear garden offers a sizeable lawn, wooden built shed, a concrete patio area and side gated access to the front. The garden space has a sense of privacy and would make great outdoor space for gardening enthusiasts and outdoor entertaining.
Additional
This home has gas central heating and double glazing throughout. Ample on-street parking is available to the front of the property.
IMPORTANT NOTE TO POTENTIAL PURCHASERS:
We endeavour to make our particulars accurate and reliable, however, they do not constitute or form part of an offer or any contract and none is to be relied upon as statements of representation or fact. The services, systems and appliances listed in this specification have not been tested by us and no guarantee as to their operating ability or efficiency is given. All photographs and measurements have been taken as a guide only and are not precise. Floor plans where included are not to scale and accuracy is not guaranteed. If you require clarification or further information on any points, please contact us, especially if you are travelling some distance to view. Fixtures and fittings other than those mentioned are to be agreed with the seller.
Richmond Terrace, Portgordon, Moray, AB56
Additional Information
-
Property refELG250143
-
EPCD
-
TenureFreehold
-
Council TaxB
-
Local authorityMoray Council
Situated to the front of the house is the main reception room boasting large windows, a feature fireplace with wood burner and plenty of furnishing space.
The open-plan connection to the lounge creates an inviting space ideal for entertaining guests or family meals.
There’s a modern kitchen offering plenty of worktop space and cupboard storage, a built-in cupboard and access to the rear porch. There is allocated under counter space for freestanding appliances.
The contemporary family bathroom is conveniently positioned on the ground floor of the property. The bathroom is fully tiled throughout and consists for a four-piece white suite that includes a WC, wash hand basin, bath and separate corner shower enclosure.
There’s a generous sized second reception room located to the rear of the home. This room boasts plenty of space whilst having window views over the rear garden and external door access.
Positioned to the ground floor is the largest of the bedrooms. This room has a walk-in storage cupboard and built-in storage space which could easily be adapted as an additional enclosed wardrobe.
A good size double bedroom benefitting from a bay window and Velux window, allowing for ample natural light. Additionally, this room has a built-in wardrobe with mirror sliding doors.
The third bedroom is another good size double room. This room also benefits from a bay and Velux window as well as a built-in wardrobe.
Conveniently positioned is an upstairs WC with wash hand basin which is partially tiled allowing for an easy upkeep.
A fully enclosed rear garden offers a sizeable lawn, wooden built shed, a concrete patio area and side gated access to the front. The garden space has a sense of privacy and would make great outdoor space for gardening enthusiasts and outdoor entertaining.
The pin shows the exact address of the property
Energy Efficiency Rating
Very energy efficient - lower running costs
Not energy efficient - higher running costs
Current
62Potential
79CO2 Rating
Very energy efficient - lower running costs
Not energy efficient - higher running costs
